Découvrez ce bel appartement T4 en rez-de-jardin, situé dans une résidence récente de 2014.
Lumineux, spacieux et parfaitement agencé, il offre un cadre de vie pratique et convivial. La pièce maîtresse ? Son vaste rez-de-jardin de 125 m², agrémenté de 3 terrasses qui prolongent l'espace intérieur et permettent de profiter pleinement des beaux jours.
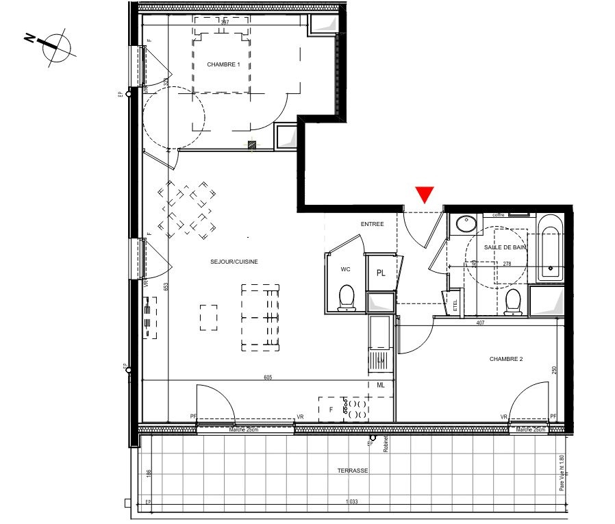
À l'intérieur, vous apprécierez sa grande pièce de vie ouverte sur le séjour, avec une cuisine américaine aménagée et équipée. Une entrée indépendante avec deux placards, de nombreux rangements et une belle luminosité rendent ce bien aussi fonctionnel qu'agréable.
L'appartement comprend également : 3 chambres, chacune équipée de placards (dont une avec double placards) Une salle de bain avec fenêtre Un WC indépendant avec coin buanderie
Cet appartement est conforme aux normes PMR, avec des ouvertures en PVC à double vitrage et un chauffage individuel pour un confort optimal. Les parties communes, tout comme l'intérieur, sont en excellent état.
À proximité, vous trouverez une maternelle et une école élémentaire à 10 minutes à pied, ainsi qu'un parc et jardin à 10 minutes à pied. Pour vos courses quotidiennes, une alimentation générale est à 5 minutes à pied. Six restaurants sont également accessibles à 5 minutes à pied. Les collèges sont à 5 minutes en voiture, et un hôpital est à 10 minutes en voiture. Un médecin généraliste est à 10 minutes à pied. Le bus est à 5 minutes à pied, et l'appartement est éligible à l'internet haut débit.
Informations complémentaires : Prix de vente : 295 000 H.A.I En sus du prix, vous avez la possibilité d'acquérir : Une place de parking extérieur : 10 000 H.A.I Un garage en sous-sol : 15 000 H.A.I
Charges de copropriété : 160 / mois Aucune procédure en cours Pour plus d'informations ou une visite, contactez Marine Panza : ? 06 59 94 52 76 ?? marine.panza@blaow.fr RSAC : 854 015 476 / EI Les informations sur les risques liés au bien sont disponibles sur www.georisques.gouv.fr.
Honoraires à la charge du vendeur. Classe énergie C, Classe climat C Montant moyen estimé des dépenses annuelles d'énergie pour un usage standard, établi à partir des prix de l'énergie de l'année 2021 : entre 898.00 et 1216.00 . Les informations sur les risques auxquels ce bien est exposé sont disponibles sur le site Géorisques : georisques.gouv.fr.