93350 LE BOURGET- Grand 2 pièces au calme avec jardin
Le Bourget 93350
0
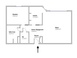
Appartement exceptionnel T2 de 47 m2 aux loggias du Bourget. Appartement au RDC sur 3 étages dans une résidence très bien entretenue et sécurisée. Jardin privatif de 23 m2 clos avec une terrasse .de 8 m2 Situation Est- Ouest sur pelouse et arbres L'appartement se compose d'une entrée 4,40 m2 donnant sur un séjour de 18,72 m2 . Une cuisine équipée de.7,57 m2 Une chambre de10,53 m2 . Salle de bains 4,33 m2(douche). Un wc séparé 1,21m2 Les portes fenêtres sont équipées de volets roulants dans toutes les pièces. Un box fermé de 12 m2 au sous-sol vient compléter ce bien ! Cet appartement s'inscrit dans un cadre chaleureux et très calme. Les charges sont de 135 /mois La taxe foncière est de 1300 /an. Possibilité d'acquérir un emplacement de parking en extérieur. Idéalement situé, à seulement 5 minutes à pied du RER B Le Bourget (à 3 stations de Paris), du tramway T11 et du métro lignes 16 et 17. Bus 133, 143, 146, 152, 607, 609, 703. Nationale 2. Accès autoroutes Al, A3 et A86. Proche d'une école privée et publiques, marché, commerces. Pour plus d'INFORMATION ou afin d'organiser une VISITE, N'hésitez pas à me CONTACTER par TÉLÉPHONE ou par MAIL: Arnaud VAUTRIN / 06 88 84 51 25 / arnaud.vautrin@agence-hamilton.com
47.13 m²
4 031 €
29 m²
2
1
1
114 € / mois
Électrique
Aménagée
1
1
Consommations énergétiques
Logement économe
249
Logement énergivore (kWhEP/m2/an)
Émissions de gaz à effet de serre
Faible émission de GES
7
Forte émission de GES(kgeqCO2/m2/an)
Contact AGENCE HAMILTON PARIS
Contacter gratuitement à l'aide du formulaire ci-dessous.