A 10 mn de THONON Villa T4 85 m² jardin 167 m² Calme et vue dégagée montagne ( 74200)
Thonon-les-Bains 74200
0
Située au calme de l'ensemble immobilier Les pavillons du château , en bordure de zone inconstructible de la commune de Maugny, à 10 mn de THONON,
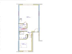
Villa mitoyenne d'environ 85 m², avec un jardin de 167 m², un stationnement couvert, un stationnement extérieur et un grand cellier extérieur.
Elle est composée d'un hall d'entrée, une pièce de vie avec espace cuisine ouverte et celier, le tout donnant sur le jardin exposé SUD OUEST avec une magnifique vue dégagée sur les montagnes. Une première chambre et une salle de douche avec WC.
A l'étage, un dégagement, deux nouvelles chambres avec espaces rangements et une grande salle de bain avec WC.
Dommage ouvrage , norme RT 2020.
Commodités d'Allinges à 3 mn en voiture.
Villa 3.
DPE : Non concerné par le DPE.
Prix de vente 398.000 euros Frais d'agence inclus, honoraires à la charge du vendeur.
Pour visiter et vous accompagner dans votre projet, contactez Ingrid VEDEL, au 0644120744 ou, par courriel à i.vedel@proprietes-privees.com.
Selon l'article L.561.5 du Code Monétaire et Financier, pour l'organisation de la visite, la présentation d'une pièce d'identité vous sera demandée.
Cette présente annonce a été rédigée sous la responsabilité éditoriale de Ingrid VEDEL agissant sous le statut d'agent commercial immatriculé au RSAC 985032598 auprès de SAS PROPRIETES PRIVEES, au capital de 44 920 euros, ZAC LE CHÊNE FERRÉ - 44 ALLÉE DES CINQ CONTINENTS 44120 VERTOU; SIRET 487 624 777 00040, RCS Nantes. Carte Professionnelle Transactions sur immeubles et fonds de commerce (T) et Gestion immobilière (G) n°CPI 4401 2016 000 010 388 délivrée par la CCI Nantes - Saint Nazaire. Compte séquestre n°30932508467 BPA SAINT-SEBASTIEN-SUR-LOIRE (44230). Garantie GALIAN-SMABTP - 89 rue de la Boétie, 75008 Paris - n°28137 J pour 2 000 000 euros pour T et 120 000 euros pour G. Assurance responsabilité civile professionnelle par GALIAN-SMABTP n° de police 28137.J
Mandat réf : 413038- Le professionnel garantit et sécurise votre projet immobilier.
Les informations sur les risques auxquels ce bien est exposé sont disponibles sur le site Géorisques : www. georisques. gouv. fr
Ingrid VEDEL (EI) Agent Commercial - Numéro RSAC : 985032598 - .
85 m²
4 682 €
32 m²
167 m²
4
3
1
1
2
2025
Américaine
Sud
Ouest
Oui
Oui
Contact VEDEL
Contacter gratuitement à l'aide du formulaire ci-dessous.