A 3min d'Amberieu en Bugey, charmant village d'AMBUTRIX
Ambérieu-en-Bugey 01500
0
Honoraires à la charge du vendeur.
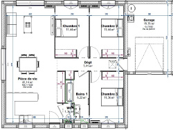
A 3 min d'Ambérieu en Bugey, charmant village d'AMBUTRIX, au coeur d'un lieu-dit exclusivement résidentiel, Proche des accès gare et autoroute, hors lotissement Villa neuve de plain-pied, d'une surface d'environ 90m2 habitables composée d'une pièce de vie de plus de 40m2 avec cuisine américaine, 3 chambres de taille confortable, salle de bain , WC indépendant, grand garage de 20m2. Sur une parcelle de terrain de 491m2 , plate, exposée Est-Ouest. Secteur agréable. Prestations: volets roulants électriques, frisettes et débords pvc, menuiseries PVC double vitrage, chauffage pompe à chaleur air/air, climatisation, carrelage 45 x 45 pièce de vie, salle de bain en partie faiencée, sanitaires inclus.
Villa
90 m²
2 944 €
41 m²
491 m²
4
3
1
1
2026
Est
Ouest
2
1
Oui
Oui
Contact BELLET
Contacter gratuitement à l'aide du formulaire ci-dessous.