A 5 mins de la gare de MELUN - Appartement 2 Pièces sur DAMM
Dammarie-les-Lys 77190
0
Les charges de location sont prévisionnelles mensuelles avec régularisation annuelle.
La part des honoraires pour la réalisation de létat des lieux de ce bien est de 127.05 euros.
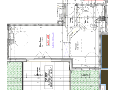
À seulement 5 minute de la Gare de Melun. Appartement de 42 m2 situé au rez-de-chaussée au sein d'une copropriété de 2024. Il offre un séjour lumineux avec cuisine ouverte, une chambre spacieuse et une salle d'eau avec wc. Pour votre confort une terrasse et une place de stationnement complètent le bien. Eau froide, eau chaude et chauffage compris dans le loyer. Disponible le 1er juin 2026. Pour candidater, cliquez sur le formulaire de contact et un lien vous permettant de vous connecter à la plateforme easyloc vous sera transmis afin que vous puissiez déposer votre dossier en toute sécurité ! Les informations sur les risques auxquels ce bien est exposé sont disponibles sur le site Géorisques http:/www.georisques.gouv
42.35 m²
21 m²
2
1
1
423.5 %
01/06/2026
170 € / mois
Oui
1
1
Oui
Consommations énergétiques
Logement économe
83
Logement énergivore (kWhEP/m2/an)
Émissions de gaz à effet de serre
Faible émission de GES
17
Forte émission de GES(kgeqCO2/m2/an)
Contact CHAMBRAUD
Contacter gratuitement à l'aide du formulaire ci-dessous.