A Chantepie aux portes de Rennes à vendre bel appartement T3 de 64 m2 en rez-de-chaussée avec un jardinet
Chantepie 35135
0
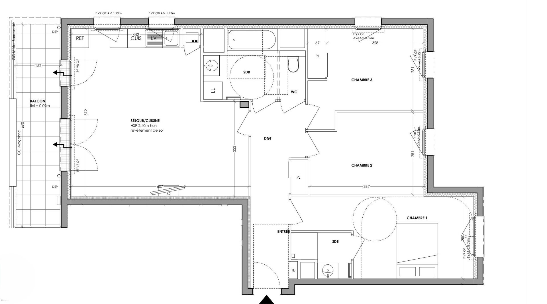
Vezin Immobilier - Livraison mai 2024 - Aux portes de Rennes, sur la commune de Chantepie avec un accès direct aux universités, gare et centre ville, à vendre bel appartement T3 de 64 m2 exposé sud-ouest en rez-de-chaussée avec une terrasse et un jardinet. Il comprend une entrée avec un grand placard, un salon-séjour avec une cuisine ouverte (25.6 m2) donnant sur une terrasse (18.8 m2) et un jardinet (69.5 m2) exposés sud-ouest, 2 chambres (11.9 et 11.4 m2) dont une avec placard, une salle de bains et un wc. Chauffage individuel gaz. 3 parkings en sous-sol. A découvrir sur notre site internet. Contact Anne Nerbusson : 06 87 48 95 53