A Chantepie aux portes de Rennes à vendre bel appartement T4 de 90 m2 exposé sud en dernier étage
Chantepie 35135
0
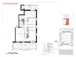
Vezin Immobilier - Livraison mai 2024 - Aux portes de Rennes, sur la commune de Chantepie avec un accès direct aux universités, gare et centre ville, à vendre bel appartement T4 de 90 m2 en dernier étage avec une grande terrasse au sud. Il comprend un grand salon-séjour avec une cuisine semi-ouverte (37.7 m2) donnant sur une terrasse au sud (27.6 m2), un cellier avec branchement machine à laver, 3 chambres (15.6, 9.3 et 9.3 m2) avec chacune un placard, une salle d'eau, une salle de bains et un wc. Une autre terrasse à l'est donnant sur la grande chambre. Chauffage individuel gaz. 1 parking double et 1 parking en sous-sol et 1 parking en extérieur. A découvrir sur notre site internet. Contact Anne Nerbusson : 06 87 48 95 53