À deux pas de tout, votre futur chez-vous vous attend !
Saint-Michel-sur-Orge 91240
0
Honoraires à la charge du vendeur.
Les charges de location sont prévisionnelles mensuelles avec régularisation annuelle.
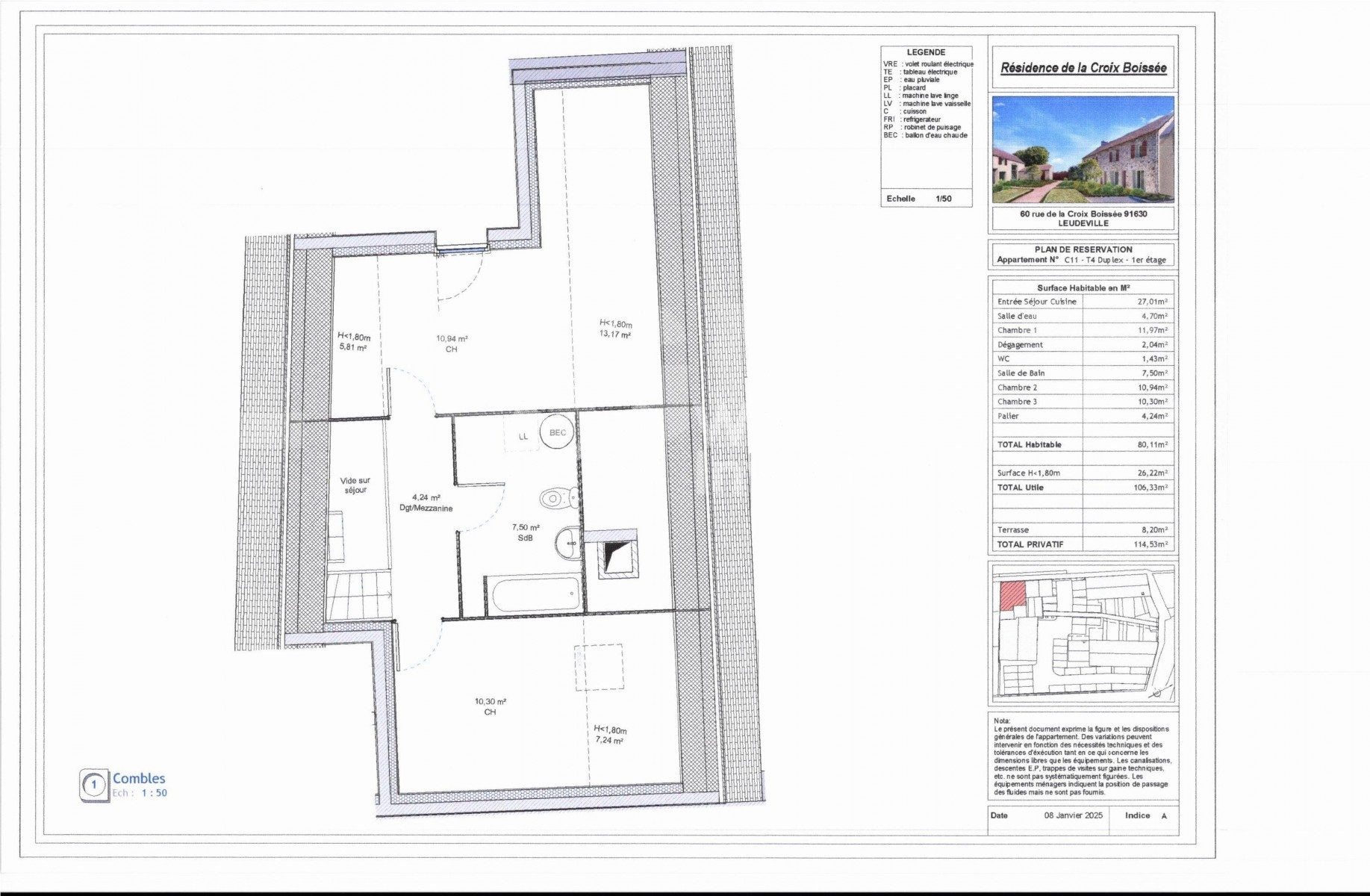
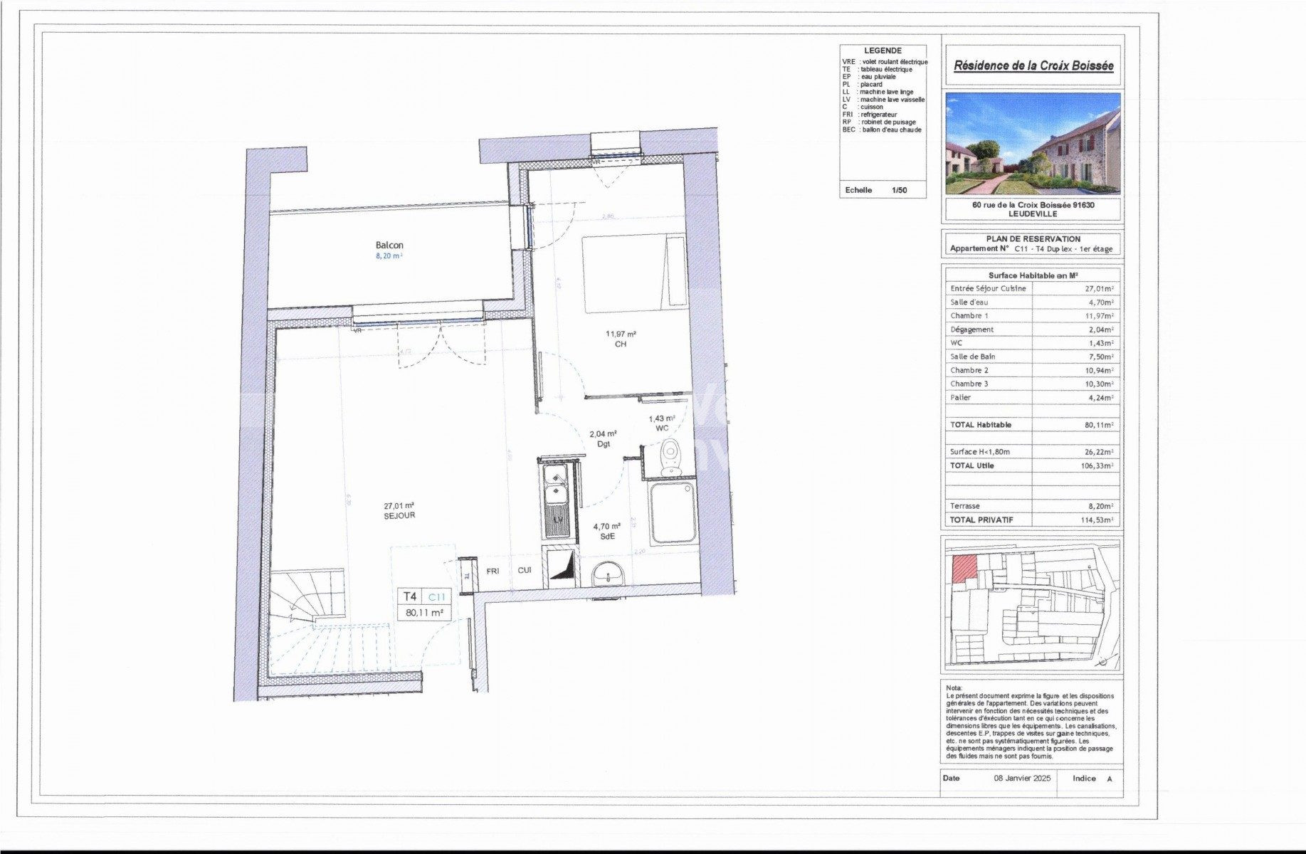
Situé à seulement quelques minutes à pied de la gare, des écoles et des commerces, ce bel appartement 4 pièces de 77 m² a tout pour plaire. Installé dans une résidence récente, sécurisée et bien entretenue, il vous offre confort, espace et tranquillité.
Fonctionnel et convivial, il se compose de : Une entrée avec rangements Une cuisine aménagée (possibilité d'ouverture pour une pièce de vie encore plus ouverte !) Un séjour lumineux avec accès à un balcon pour profiter des beaux jours Trois chambres, toutes avec placards et donnant sur un extérieur parfait pour les enfants ou un bureau Une salle de bains, des WC séparés et un couloir avec rangements En bonus : 2 places de parking en sous-sol, pour stationner en toute sérénité. Traversant et baigné de lumière naturelle, cet appartement est idéal pour une famille souhaitant poser ses valises dans un environnement pratique et paisible, tout en restant proche de tout.
À visiter sans tarder une belle opportunité familiale à ne pas manquer !
Honoraires à la charge du vendeur. Dans une copropriété de 50 lots. Quote-part moyenne du budget prévisionnel 1 908 /an. Aucune procédure n'est en cours. Classe énergie C, Classe climat C Montant estimé des dépenses annuelles d'énergie pour un usage standard : entre 1110.00 et 1560.00 sur les années 2021, 2022 et 2023 (abonnements compris). Les informations sur les risques auxquels ce bien est exposé sont disponibles sur le site Géorisques : georisques.gouv.fr.
Votre conseiller We Invest France : Jean-Charles TACANHO Agent commercial (Entreprise individuelle) RSAC 813 306 396 EVRY
77 m²
3 312 €
24 m²
4
3
1
1
2001
Oui
2
1
Oui (50 lots)
Consommations énergétiques
Logement économe
142
Logement énergivore (kWhEP/m2/an)
Émissions de gaz à effet de serre
Faible émission de GES
27
Forte émission de GES(kgeqCO2/m2/an)
Contact Jean-Charles TACANHO
Contacter gratuitement à l'aide du formulaire ci-dessous.