À Étaples, appartement neuf à vendre avec Agence Centrale
Étaples 62630
0
Honoraires à la charge du vendeur.
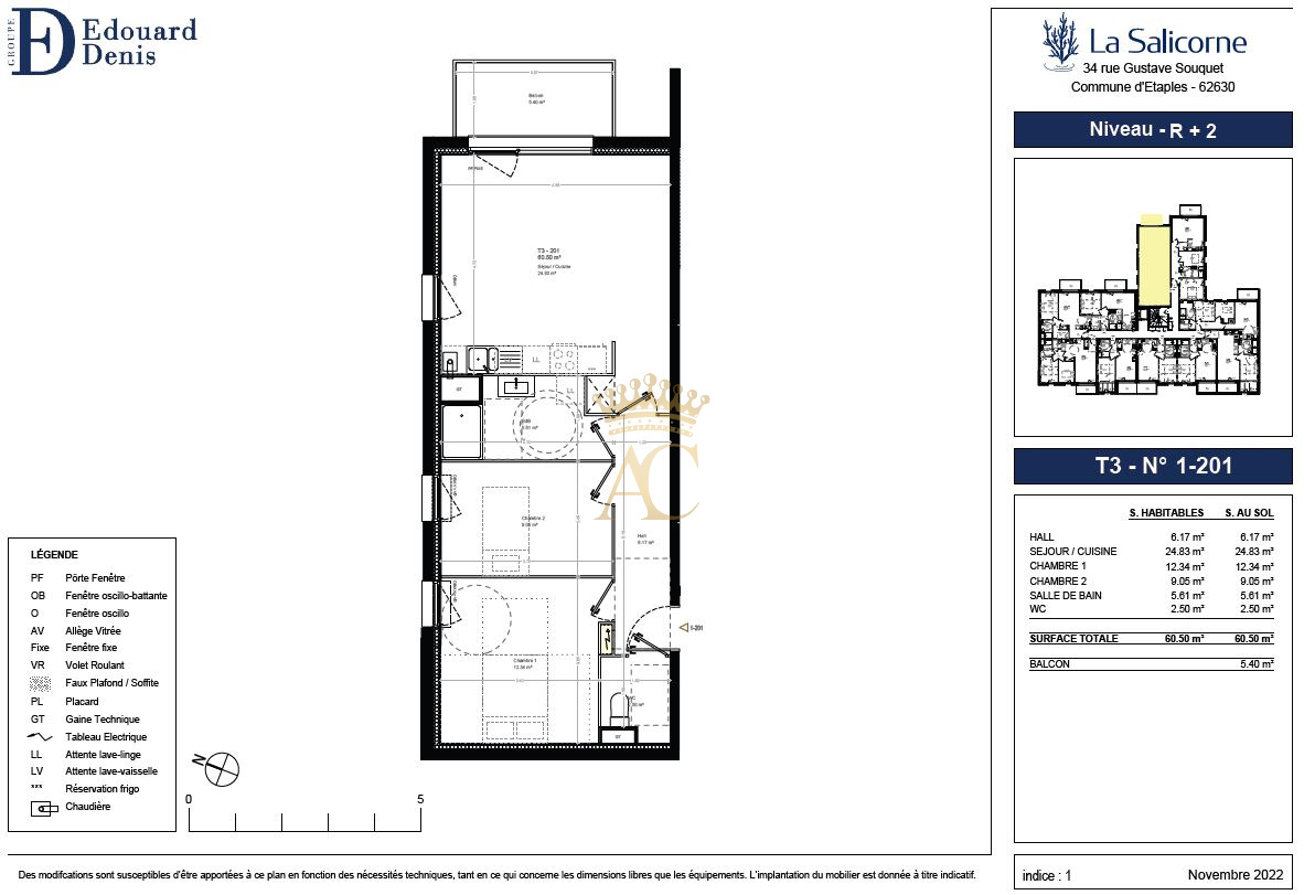
Garantie d'un investissement réussi avec cet appartement de type F3 à Étaples. Dans un bel immeuble neuf de standing dont la construction s'achèvera en 2026. Si vous voulez en savoir plus, votre agence immobilière Agence Centrale se fera un plaisir de vous aider. L'intérieur de 63.44m2 est composé de 2 chambres, une salle de bain, un espace cuisine et un coin salon de 23.31m2. Cet appartement est au 1er étage ; les sportifs pourront prendre l'escalier mais la copropriété comprend un ascenseur. Satisfait aux normes des bâtiments label de bâtiment à basse consommation qui garantit des économies d'énergie au quotidien. Le calme du lieu est garanti grâce aux fenêtres à double vitrage. Pour profiter de l'extérieur, le bien vous propose un balcon mesurant 5.40m2, ce qui porte la surface à vivre à 68.84m2. Il vous fait profiter d'une place de parking privative. Prix de vente : à partir de 253 000 euros. Les informations sur les risques auxquels ce bien est exposé sont disponibles sur le site Géorisques : www.georisques.gouv.fr