A louer : 2 pièces très lumineux avec parking et cave
Lucé 28110
0
Honoraires à la charge du vendeur.
Les charges de location sont prévisionnelles mensuelles avec régularisation annuelle.
La part des honoraires pour la réalisation de létat des lieux de ce bien est de 139 euros.
À louer : Appartement 2 pièces de 48 m² avec cave et parking Lucé
Bien Serein Immobilier a le plaisir de vous proposer ce bel appartement 2 pièces, très lumineux et refait à neuf, situé au 4? étage avec ascenseur, dans une résidence de qualité récemment rénovée (isolation extérieure et installation de VMC en 2024).
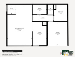
L'APPARTEMENT SE COMPOSE de : - une entrée - un séjour lumineux avec vue Cathédrale - une cuisine semi-ouverte - une chambre - un cagibis/dressing - une salle d'eau avec emplacement lave-linge et sèche-linge - un WC indépendant
CONFORT - Menuiseries PVC double vitrage - Volets roulants (électriques dans le salon, manuels dans la chambre) - Exposition Est (soleil du lever du jour jusqu'au début d'après-midi) - Chauffage individuel au gaz (chaudière à condensation), pour une maîtrise des dépenses - 1 place de stationnement extérieure sécurisée incluse - 1 cave privative, idéale pour le stockage - 1 local à vélos commun
L'EMPLACEMENT L'appartement se situe dans la rue de la République à Lucé, au pied d'un arrêt de bus (ligne 4) et à proximité immédiate des commerces de quartier : boulangerie, salle de sport, restaurants, coiffeur, banques, bar-tabac-presse, etc.
CONDITIONS DE LOCATION - Loyer : 640 /mois charges comprises (dont 100 de provision sur charges pour l'eau froide, l'entretien des parties communes, et espaces verts) - Dépôt de garantie : 1 mois de loyer hors charges (540 ) - Honoraires locataire : 510,40 TTC (dont 139,20 pour l'état des lieux)
INTERRESSE(E) ? VOICI COMMENT PROCEDER 1- RDV sur l'annonce depuis notre site internet Bienserein.fr 2- Visite virtuelle : découvrez l'appartement comme si vous y étiez 3- Dépôt de dossier locataire : déposez votre dossier 100 % dématérialisé directement sur l'annonce de notre site internet Bien Serein Immobilier 4- Acceptation dossier : nous vous contactons sous 24/48h pour organiser une visite 5- Visite : les visites sont organisées par ordre de dossier accepté
Honoraires de 510 TTC à la charge du locataire comprenant 139 TTC pour l'état des lieux. Loyer de base 540 /mois. Provision sur charges 100 /mois, régularisation annuelle. Classe énergie D, Classe climat D Montant estimé des dépenses annuelles d'énergie pour un usage standard : entre 764.00 et 1034.00 sur les années 2021, 2022 et 2023 (abonnements compris). Les informations sur les risques auxquels ce bien est exposé sont disponibles sur le site Géorisques : georisques.gouv.fr.
46.4 m²
18 m²
2
1
1
1 (séparé)
4 sur 4
510 %
100.00 € / mois
1972
Est
Oui
Oui
1
Oui
Consommations énergétiques
Logement économe
151
Logement énergivore (kWhEP/m2/an)
Émissions de gaz à effet de serre
Faible émission de GES
30
Forte émission de GES(kgeqCO2/m2/an)
Contact Fabien HEMERY
Contacter gratuitement à l'aide du formulaire ci-dessous.