A LOUER : APPARTEMENT NEUF - T4 - 87 M² - RESIDENCE DU MANEGE - CAEN
Caen 14000
0
Honoraires à la charge de l'acquéreur (Prix hors honoraires : 40000 euros).
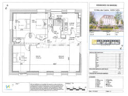
Notre agence POZZO Caen Location est ravie de vous présenter cet appartement de 4 pièces au calme de 86.89 m² à CAEN (14000). Il compte une entrée, un grand séjour de 29,72 m², une cuisine séparée comprenant un meuble évier, une arrière-cuisine, un grand placard de rangement, trois chambres, une salle d'eau et un WC indépendant. Situé au troisième et dernier étage d'un immeuble neuf. Le bâtiment a été construit en 2025. Une place de parking en extérieur est réservée pour cet appartement, et pour plus de rangements, le logement est équipée d'une grande cave de 8.25 m². L'appartement bénéficie d'un chauffage collectif au gaz. Eau chaude individuelle électrique. Eau froide individuelle. Disponible à partir du 9 décembre ! Il est proposé à la location pour un loyer mensuel de 1283.02 euros CC, avec 191.91 euros de provision sur charges (chauffage collectif, entretien des communs et taxe d'ordures ménagères). Un dépôt de garantie de 1091.11 euros est demandé. Les informations sur les risques auxquels ce bien est exposé sont disponibles sur le site Géorisques : www.georisques.gouv.fr. Contactez votre agence immobilière POZZO Caen Location pour obtenir de plus amples renseignements sur cet appartement en location à CAEN.