Honoraires à la charge de l'acquéreur (Prix hors honoraires : 0 euros).
Les charges de location sont prévisionnelles mensuelles avec régularisation annuelle.
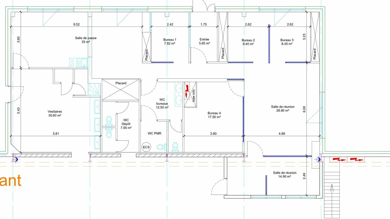
Sassenage, rive Ouest de Grenoble, à louer local mixte Shworoom / activité offrant 2358m2 dont 1250m2 au sol. Locaux non ERP à l'heure actuelle. Ces locaux sont en excellent état et sont climatisés. Equipés tarif jaune. Travaux possibles d'aménagements de bureaux à l'étage, ouvertures de 2 portes sectionnelles, sur le côté et à l'arrière du bâtiment.
RESEAU BROKERS® est le premier cabinet immobilier d'entreprise structuré en réseau de mandataires. Nous maillons avec notre équipe de 80 Brokers une grande partie du territoire national pour accompagner nos entreprises clientes dans leurs recherches de commerces, bureaux, locaux d'activités, immeubles et fonciers. www.reseau-brokers.com
Honoraires de 36 000 à la charge du locataire. Dépôt de garantie 60 000 . DPE en cours. Les informations sur les risques auxquels ce bien est exposé sont disponibles sur le site Géorisques : georisques.gouv.fr.