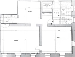
A louer plateau de bureaux rénové de 100m² situé au 1er étage avec ascenseur.
Comprenant un espace accueil de 19,2m², 2 bureaux de 29,7m² et 23,6m² et sanitaire.
Accessible PMR.
Bail professionnel, dérogatoire ou commercial.
Loyer annuel 14 400€ HT et HC.
Charges annuelles 600€.
Soumis à TVA.
Dépôt de garantie 2 400€.
Taxes foncières à la charge du locataire (1 063€).
Frais d'agence 3 628,80€ TTC.
Rédaction du bail par l'agence 1 200€ TTC.
Etat des lieux 360€ TTC.
Disponible immédiatement..
100 m²
Contact Rachel Poli
Contacter gratuitement à l'aide du formulaire ci-dessous.