Honoraires à la charge de l'acquéreur (Prix hors honoraires : 0 euros).
Les charges de location sont prévisionnelles mensuelles avec régularisation annuelle.
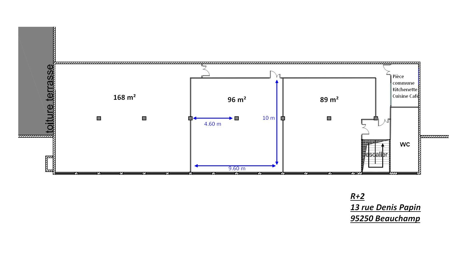
Le cabinet Réseau Brokers vous propose à la location sur la ville d'Argenteuil 218 m² de bureaux, spacieux et très lumineux prêts à accueillir vos équipes dans un environnement professionnel et agréable.7 emplacements de parking inclus Immeuble en copropriété, site sécurisé. Conditions financières : Loyer : 130 HT / m² / an Charges : 16 068 HT / an (incluant électricité , charges de copropriété, eau, ménage, ascenseur etc.... ) Taxes 2024 : foncières 3 935,78 HT, bureaux 970,44 HT, stationnement 222 HT Assurance PNO 2025 : 277 HT / an Accessibilité / Transports : Gare d'Argenteuil (Transilien J) ? Paris Saint-Lazare en ~20 min Bus lignes 272, 164 et 6 à proximité immédiate Tram T2 Pont de Bezons (accès rapide depuis la zone) Accès direct aux autoroutes A15 et A86, ainsi qu'aux Quais de SeIne
RESEAU BROKERS® est le premier cabinet immobilier d'entreprise structuré en réseau de mandataires. Nous maillons avec notre équipe de 80 Brokers une grande partie du territoire national pour accompagner nos entreprises clientes dans leurs recherches de commerces, bureaux, locaux d'activités, immeubles et fonciers. www.reseau-brokers.com
Provision sur charges 1 339 /mois, régularisation annuelle. DPE en cours. Les informations sur les risques auxquels ce bien est exposé sont disponibles sur le site Géorisques : georisques.gouv.fr.