Honoraires à la charge de l'acquéreur (Prix hors honoraires : 0 euros).
Les charges de location sont prévisionnelles mensuelles avec régularisation annuelle.
Imaginez un espace où votre entreprise peut prospérer, un lieu où chaque détail a été pensé pour maximiser votre productivité et votre confort. Ce local professionnel, actuellement libre, est prêt à accueillir votre activité avec un potentiel immense.
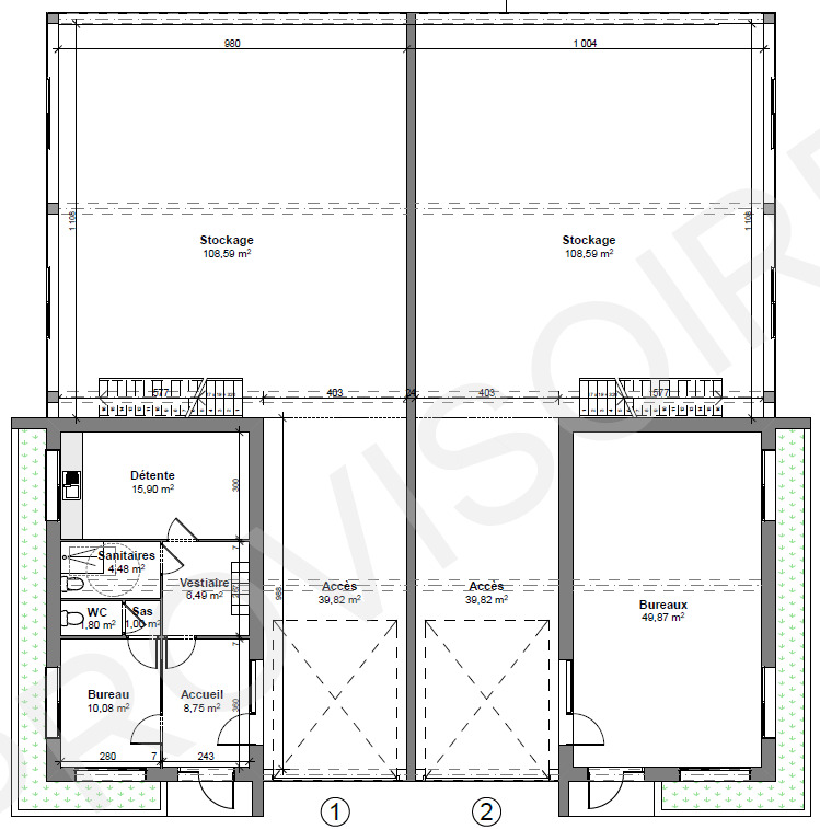
Un Espace de Travail Spacieux et Fonctionnel Avec un atelier de 240 m², vous disposerez d'un espace de travail vaste et lumineux, équipé d'une porte sectionnelle motorisée pour faciliter l'accès et le chargement/déchargement de vos marchandises. Cet atelier est parfait pour toutes sortes d'activités artisanales, industrielles ou de stockage. Pour le bien-être de vos employés, un vestiaire avec douche et sanitaires de 6.37 m² est à leur disposition, offrant un espace de détente et de fraîcheur après une journée de travail intense. L'accueil et le bureau indépendant de 28 m², avec sanitaires privés, offrent un espace de réception élégant et professionnel pour vos clients et partenaires. Cet espace est idéal pour les réunions, les entretiens et les discussions confidentielles.
Un Emplacement Stratégique Situé dans un environnement dynamique et bien desservi, ce local professionnel est à proximité de toutes les commodités nécessaires à votre activité. Vous trouverez plusieurs restaurants à seulement 5 min en voiture, parfaits pour des déjeuners d'affaires ou des pauses gourmandes. Plusieurs médecins généralistes sont également à 5 min en voiture, garantissant une proximité médicale en cas de besoin. Pour les familles, une crèche et une alimentation générale sont accessibles en 5 min en voiture, tandis qu'une maternelle, une école élémentaire et un collège sont à 10 min à pied, offrant un cadre de vie idéal pour vos employés et leurs enfants. Plusieurs parcs et jardins sont également à 10 min en voiture, parfaits pour des pauses détente ou des activités en plein air. Un parking commun est disponible, facilitant l'accès et le stationnement pour vos employés et vos clients.
Une Opportunité à Ne Pas Manquer Ce local professionnel est bien plus qu'un simple espace de travail. C'est un lieu où votre entreprise peut grandir, où vos idées peuvent prendre forme et où votre succès peut s'épanouir. Ne manquez pas cette opportunité unique de donner à votre activité un cadre de travail exceptionnel. Contactez-nous dès aujourd'hui pour organiser une visite et découvrir par vous-même tout le potentiel de ce local professionnel.
Honoraires de 5 496 HT à la charge du locataire. Dépôt de garantie 4 200 . Non soumis au DPE. Les informations sur les risques auxquels ce bien est exposé sont disponibles sur le site Géorisques : georisques.gouv.fr.
Local d'activités
285 m²
5496 %
01/06/2025
2024
Contact IEV IMMOBILIER D'ENTREPRISE VENDEE
Contacter gratuitement à l'aide du formulaire ci-dessous.