La part des honoraires pour la réalisation de létat des lieux de ce bien est de 258 euros.
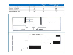
A louer local commercial 86 M2 centre ville , bureaux commerces sans nuisances, vitrine 8 mètres, rdc 52 M2 climatisé, exposé ouest, accès direct sous sol aménagé 34 M2 avec espace stockage, cuisine, douche. Entrée rue et entrée immeuble privative, place de stationnement en sous sol. Loyer mensuel 2300 euros ht et hors charges. Immeuble récent, locaux refait à neuf il y a 3 ans, aucun travaux
86 m²
9 %
250 € / mois
1990
Oui
Oui
Oui (30 lots)
Consommations énergétiques
Logement économe
341
Logement énergivore (kWhEP/m2/an)
Émissions de gaz à effet de serre
Faible émission de GES
9
Forte émission de GES(kgeqCO2/m2/an)
Contact CASADIO Stephane
Contacter gratuitement à l'aide du formulaire ci-dessous.