A LOUER LOCAL COMMERCIAL DE 94m2 à 472m2 BENESSE MAREMNE
Bénesse-Maremne 40230
0
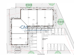
Location Locaux Professionnels Neufs Opportunité Unique : Implantation dans un Bâtiment d'Activités de Services Neuf (Livraison Juin 2026) Saisissez l'opportunité de développer votre activité dans un bâtiment moderne, bénéficiant d'un emplacement stratégique et d'un accès sécurisé. Idéal pour activités de services, ce programme neuf est conçu pour répondre aux exigences professionnelles actuelles. Les Atouts du Projet :
Neuf et Moderne : Construction récente, garantissant des installations aux dernières normes. Les locaux vous sont fournis avec dalle quartz, placo Emplacement Clé : Très forte visibilité, situé sur un axe passant : plus de 22000 passages/jour, avec un accès optimisé sur la route principale Stationnement Aisé : Le plan de masse prévoit de nombreuses places de parking sur une surface en enrobé. Architecture Soignée : Bâtiment en forme de L avec des menuiseries en aluminium gris anthracite, toitures en tuiles rouge brun et casquettes en bois naturel. Gare TER à proximité
Les Locaux Disponibles (4 Cellules) : NON ASSUJETI A LA TVA 1er local 93.78m2 loyer de 2490EUR NET 2eme local 112.82m2 loyer de 2690EUR NET 3eme local 129.57m2 loyer de 2790EUR NET 4eme local 137.84m2 loyer de 2990EUR NET
Honoraires GM : Deux mois de loyer HT.
Les locaux seront disponibles à la location pour Mai/Juin 2026. Contactez-nous dès maintenant pour obtenir les informations et venir visiter. Franck Labidalle 07 86 95 28 73 GM IMMOBILIER
112 m²
5976 %
2025
Contact LABIDALLE Franck
Contacter gratuitement à l'aide du formulaire ci-dessous.