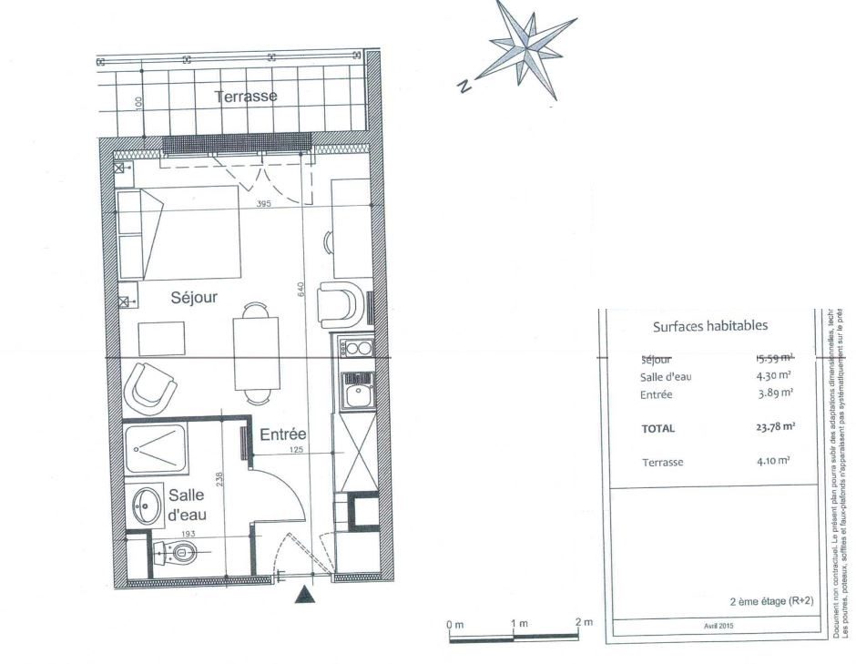
Rue Edmond Bonté, Appartement situé au 7ème et dernier étage, comprenant: Entrée, séjour, cuisine, salle d'eau avec WC, chambre. CAVE et ASCENSEUR. Les +: -Double vitrage PVC, -A 2 minutes à pieds de la gare. -A 2 minutes en voitures de la N7 -VUE dégagée, Chauffage GAZ collectif, Exposition ouest, Charges 170 euros/mois comprenant: eau froide/chaude, chauffage, gardiennage,
Honoraires à la charge du vendeur. Dans une copropriété de 320 lots. Quote-part moyenne du budget prévisionnel 2 040 /an. Procédure en cours : Impayés. Logement à consommation énergétique excessive : Classe énergie F, Classe climat F Montant estimé des dépenses annuelles d'énergie pour un usage standard : entre 940.00 et 1330.00 sur les années 2021, 2022 et 2023 (abonnements compris). Les informations sur les risques auxquels ce bien est exposé sont disponibles sur le site Géorisques : georisques.gouv.fr.