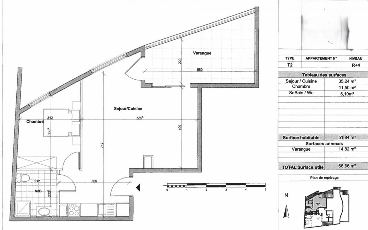
Investir dans cet appartement doté de 3 chambres facile à louer et idéal pour construire votre patrimoine sur le territoire de Saint-Denis. La résidence se situe à proximité de la rue Lory les Bas et elle est conforme aux normes d'accessibilité. Cet appartement est au 1er étage ; selon votre humeur, vous pouvez emprunter l'escalier ou l'ascenseur. Il possède un espace cuisine et 3 chambres. La surface plancher habitable mesure à peu près 69.81m2. Aspect important, le domicile offre une salle de bain et une douche séparée pour un confort additionnel. Il vous fait profiter d'une place de parking en sous-sol. Propice à un investissement immobilier, cet appartement peut être l'objet d'un placement. Pour planifier une visite, entrez rapidement en contact avec votre agence 3XP3RT IMMO. Prix de vente : 196.000 EUR honoraires d'agence inclus à la charge du vendeur Délégation de mandat de vente no 2024-04 Non soumis au DPE - Copropriété de 58 lots dont 29 appartements - Aucune procédure en cours Les informations sur les risques auxquels ce bien est exposé sont disponibles sur le site Géorisques : www.georisques.gouv.fr
69.81 m²
2 808 €
4
3
1
1
1
Oui
1
1
Oui
Oui
Oui
Oui
Contact Marel
Contacter gratuitement à l'aide du formulaire ci-dessous.