A SAISIR! Bureaux 223m² avec parkings à Saint-Martin-le-Vinoux (38950)
Saint-Martin-le-Vinoux 38950
0
Adresse : rue des Vingt Toises à Saint-Martin-le-Vinoux (38950)
Situés au rez-de-chaussée d'un immeuble de bureaux récent, ces locaux professionnels lumineux et climatisés offrent un cadre de travail confortable et fonctionnel, idéal pour une entreprise souhaitant s'implanter à proximité immédiate de Grenoble.
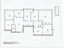
Le bien se compose de deux lots distincts :
Premier local (148 m²) :
7 bureaux indépendants, un espace de rangement et une circulation fluide.
Deuxième local (environ 75 m²) :
2 bureaux, une salle de réunion, un showroom de 13 m² et une cuisine équipée.
Soit une surface totale d'environ 223 m², entièrement climatisée en réversible, offrant des prestations de qualité et un confort optimal toute l'année.
Atouts complémentaires :
9 places de stationnement privatives
Climatisation réversible dans l'ensemble des bureaux
Environnement calme et bien desservi
Taxe foncière : 5 421 € / an
Charges de copropriété : 6 044 € / an
Loyer actuel : 2 850 € HT / mois soit 11.8% de rentabilité brute!
Locaux libérés en février 2026
Ces bureaux conviendront parfaitement à un acquéreur utilisateur souhaitant anticiper son installation ou à un investisseur recherchant un bien sécurisé avant occupation.
Cette annonce référence 307607 vous est présentée par votre agent commercial BSK Immobilier ALAIN JONG PAO (EI) immatriculé au RSAC de GRENOBLE (38000) sous le numéro 75230805600023.
Prix du bien : 290 000,00 €
Les honoraires d'agence sont à la charge du vendeur.
A propos de la copropriété :
Pas de procédure en cours.
Nombre de lots : 12
Charges prévisionnelles annuelles : 6 044,00 €
Non soumis au DPE.
Les informations sur les risques auxquels ce bien est exposé sont disponibles sur le site Géorisques : www.georisques.gouv.fr
223 m²
1 300 €
11
1996
Contact ALAIN JONG PAO
Contacter gratuitement à l'aide du formulaire ci-dessous.