Honoraires à la charge de l'acquéreur (Prix hors honoraires : 0 euros).
Les charges de location sont prévisionnelles mensuelles avec régularisation annuelle.
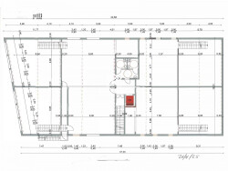
Découvrez une opportunité unique d'implantation pour votre entreprise dans la zone d'activité en plein essor de 'Les Grands Prés' à Chevry. Ce nouveau bâtiment, dont la construction débutera prochainement, offre une flexibilité exceptionnelle avec des espaces commerciaux, des ateliers et des bureaux, tous divisibles selon vos besoins. - **Visibilité exceptionnelle** : Situé en première ligne face à la rue de la Faucille, une artère majeure reliant Gex à Saint-Genis Pouilly, votre entreprise bénéficiera d'une exposition optimale avec un passage de plus de 15 000 véhicules par jour. - **Espaces diversifiés** : - 2 Surfaces commerciales, 168 M2 + mezzanine 30 M2 ou 151 M2 + mezzanine 30 M2 : 240 /m² H.T./H.C. par an - **Équipements modernes** : Le bâtiment sera équipé d'un ascenseur, d'un accès PMR, et répondra aux normes ERP pour garantir confort et sécurité. - **Opportunité de personnalisation** : Chaque espace peut être aménagé selon vos besoins spécifiques, vous permettant de créer un environnement de travail qui reflète l'identité de votre entreprise. La surface commerciale de 151 M2 en Rez avec Mezzanine de 30 M2 sera proposée à 3'620.- H.T./H.C. par mois soient 43'440.- H.T./H.C. par an! Que vous soyez un créateur d'entreprise ou un acteur établi cherchant à développer votre activité, ces locaux représentent une occasion exceptionnelle de s'installer dans l'une des zones les plus dynamiques de la région. Ne manquez pas cette chance de donner à votre société une visibilité et un potentiel de croissance inégalés. Pour plus d'informations ou pour organiser une visite, n'hésitez pas à nous contacter. Soyez parmi les premiers à choisir votre futur espace dans ce bâtiment moderne et stratégique !
Honoraires de 8 688 HT à la charge du locataire. Dépôt de garantie 3 620 . DPE en cours. Les informations sur les risques auxquels ce bien est exposé sont disponibles sur le site Géorisques : georisques.gouv.fr.