À vendre : Appartement 2 pièces à Villenave d'Ornon
Villenave-d'Ornon 33140
0
Honoraires à la charge de l'acquéreur (Prix hors honoraires : 144750 euros).
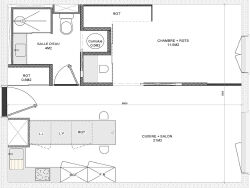
Dans une résidence de 2009 découvrez cet appartement de 2 pièces, idéalement situé à Villenave d'Ornon, dans le quartier calme de Chambéry . Avec une surface de 38 m², cet appartement au 3ème et dernier étage comprend une chambre avec coin bureau un séjour lumineux donnant sur une cuisine américaine aménagée et équipée, ainsi qu'une salle d'eau et un WC séparé. L'appartement à complètement été refait à neuf et ses faibles charges font de ce bien un appartement idéal pour un 1er achat ou un investissement locatif Vous disposez également d'une place de parking extérieur. Contactez l'agence ERA Victor Louis Immobilier pour plus d'informations. (3.28 % honoraires TTC à la charge de l'acquéreur.) Copropriété de 75 lots - dont 75 lots habitation. (Pas de procédure en cours). Charges annuelles : 800 euros. Thomas DABROWSKI (EI) Agent Commercial - Numéro RSAC : 933517765 - Bordeaux.