A vendre - Appartement de 91 m² à PARIS (75017) Ternes - Pereire
Paris 75017
0
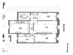
<p>Situé au c?ur du 17? arrondissement de Paris, sur le boulevard Pereire, cet appartement de 91 m² occupe le 2? étage, sans ascenseur, d'un ancien hôtel particulier de caractère construit au début du XXème siècle. Il bénéficie d'une exposition dégagée, offrant une belle luminosité et une vue agréable sur le boulevard arboré.</p><p>Le bien se compose de quatre pièces principales : un grand séjour (23.26 m²), trois chambres (12, 15 et 15.83 m²), une cuisine (7,97 m²), ainsi que des toilettes et dégagements. La hauteur sous plafond de près de 3 mètres et la distribution des volumes permettent d'envisager de nombreuses possibilités d'aménagement. Des travaux de rénovation sont à prévoir afin de redonner à ce bien tout son confort et de mettre en valeur son potentiel.</p><p>Le boulevard Pereire est un secteur très apprécié du 17? arrondissement, réputé pour sa qualité de vie et sa proximité immédiate des commerces (Fnac, commerces de l'avenue des Ternes) écoles et transports en commun (RER Porte Maillot/TRAM/BUS/METRO ligne 1). Ce quartier résidentiel et dynamique offre un cadre de vie agréable, idéal pour une famille ou un projet d'investissement patrimonial.</p><p>L'exercice d'une profession libéral est autorisé aux termes du règlement de copropriété.</p><p>Ce bien représente une opportunité rare pour ceux qui recherchent un appartement à rénover, lumineux, dans un emplacement prisé de la capitale, offrant volume, charme et fort potentiel de valorisation.</p><p>Bien vendu soumis au statut de la copropriété (9 lots) - Aucune procédure en cours - Charges de copropriété : 746 € /Trimestre - Taxe foncière 2025 : 1629 € - Les informations sur les risques auxquels ce bien est exposé sont disponibles sur le site Géorisques www.georisques.gouv.fr - Logement à consommation énergétique excessive : Classe G - Montant estimé des dépenses annuelles d'énergie : entre 3110 et 4240 € par an.</p><p>Prix de vente : 950.000 € honoraires de l'avocat en transactions immobilières inclus (4,8% TTC du prix de vente à la charge du vendeur)</p>
91 m²
10 440 €
4
3
Consommations énergétiques
Logement économe
451
Logement énergivore (kWhEP/m2/an)
Émissions de gaz à effet de serre
Faible émission de GES
15
Forte émission de GES(kgeqCO2/m2/an)
Contact Me Emmanuelle COHEN
Contacter gratuitement à l'aide du formulaire ci-dessous.