À Vendre : Appartement de Luxe à Saint-Didier-au-Mont-d'Or
Saint-Didier-au-Mont-d'Or 69370
0
Commune ultra prisée de l'Ouest Lyonnais, Saint-Didier-au-Mont-d'Or brille par sa situation privilégiée et sa qualité de vie incomparable. Véritable ville à la campagne, son patrimoine naturel et historique est particulièrement riche et préservé.
Au c?ur des Monts d'Or, dans un site arboré exceptionnel, cette résidence unique offre une vue remarquable et un confort de vie sans pareil. Un petit havre de paix aménagé pour le bien-être de ses résidents, combinant emplacement de choix, qualité de construction et confort de vie, lui conférant un lieu de vie unique.
Caractéristiques de la Résidence :
Nichée au c?ur d'un parc arboré sur une parcelle d'environ 1 hectare
Intégration discrète entre les arbres remarquables conservés sur la parcelle
Écrin de verdure composé d'essences variées formant sous-bois, petits jardins et courettes
Chemins de promenade rejoignant naturellement les sentiers de randonnée du village
Calme et sérénité garantis au c?ur de ce havre de paix
Forte déclivité du terrain offrant des vues dégagées sur les Monts du Lyonnais
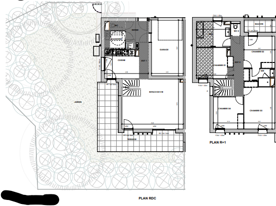
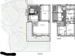
À Découvrir : Superbe Appartement 5 Pièces
Laissez-vous charmer par ce magnifique appartement de 5 pièces, offrant tout le confort d'un appartement luxueux :
Surface généreuse : 4 chambres spacieuses
Lumineux et bien agencé : Vastes espaces de vie
Vue imprenable : Perspectives à perte de vue sur le parc arboré et le paysage vallonné des Monts du Lyonnais
Prestations haut de gamme : Matériaux de qualité, finitions soignées
Profitez de ce cadre exceptionnel où la nature et la tranquillité se rencontrent, tout en étant à proximité des commodités de Saint-Didier-au-Mont-d'Or. Un lieu de vie unique, idéal pour ceux qui recherchent la quiétude sans renoncer au luxe et au confort.
Prix : 1 015 000 euros
Pour plus d'informations et pour organiser une visite, veuillez nous contacter au 0626930705 ou par e-mail à contact@buffet-thimmobilier.com.
Ne manquez pas cette opportunité rare de vivre dans un cadre idyllique et prestigieux !Pour plus d'informations ou pour organiser une visite, contactez Mr Buffet au 06.26.93.07.05 - t.buffet@mpi-immo.com - RSAC MACON n° 910760172 Agent commercial indépendant du réseau national Marketplace Immobilier N° RSAC : 910760172
118 m²
8 602 €
5
4
1
1
1
2025
Oui
Oui
Consommations énergétiques
Logement économe
50
Logement énergivore (kWhEP/m2/an)
Émissions de gaz à effet de serre
Faible émission de GES
5
Forte émission de GES(kgeqCO2/m2/an)
Contact Buffet & Ribeiro Immobilier
Contacter gratuitement à l'aide du formulaire ci-dessous.