À vendre : Appartement T2 avec balcon et parking à Reims Q
Reims 51100
0
Honoraires à la charge du vendeur.
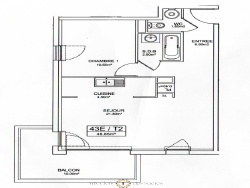
Découvrez cet agréable appartement de type 2 situé dans une résidence récente de 2009, à proximité immédiate de la Gare de Reims, dans le quartier dynamique de Clairmarais. Ce bien de 48,65 m2 en parfait état se compose d'une entrée avec placard, une cuisine fonctionnelle, une pièce de vie lumineuse, une chambre confortable, une salle de bains et des WC séparés. Vous apprécierez également son grand balcon de 10 m2 idéal pour se détendre et sa place de stationnement sécurisée en sous-sol. Cet appartement est vendu loué avec un loyer de 691,58 EUR CC par mois, parfait pour un investissement locatif. Résidence sécurisée, environnement prisé, proximité des commerces, transports et services : un bien à ne pas manquer ! Contactez-nous pour en savoir plus ou organiser une visite.
48.65 m²
3 700 €
10 m²
21 m²
2
1
1
1
3
2009
1 (10 m²)
Oui
1
Oui
Oui
Consommations énergétiques
Logement économe
208
Logement énergivore (kWhEP/m2/an)
Émissions de gaz à effet de serre
Faible émission de GES
6
Forte émission de GES(kgeqCO2/m2/an)
Contact Aux Clefs des Sacres
Contacter gratuitement à l'aide du formulaire ci-dessous.