A vendre - Emplacement rare - Plateau de 180m² - Balcon fil
Paris 75003
0
Honoraires à la charge du vendeur.
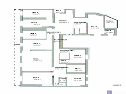
Place de la République, adresse emblématique, nous proposons à la vente un plateau de 180 m². Dans un immeuble haussmannien au 2ème avec ascenseur, ce bien bénéficie d'une double affectation : habitation et/ou profession libérale. Vous profiterez d'une vue imprenable dans un édifice haussmannien emblématique, de la possibilité de moduler les grands volumes selon vos goûts. Ses 9 pièces, idéales pour une grande famille ou un projet professionnel, se composent d'un vaste salon lumineux, d'un grand balcon filant donnant sur la Place de la République, de plusieurs chambres et d'un espace cuisine indépendante. HSP : 4 m. Les grandes fenêtres inondent chaque pièce de lumière naturelle et accentuent le volume. Chauffage individuel au gaz. 2 chambres de service sont disponibles en sus au dernier étage avec ascenseur. Nous consulter pour tout renseignement complémentaire. Fort potentiel pour ce bien d'exception. Optez pour un cadre de vie chic et pratique, où chaque jour se transforme en une expérience unique parisienne..
Siège social 140 bis rue de Rennes 75006 Paris Les informations sur les risques auxquels ce bien est exposé sont disponibles sur le site Géorisques : www.georisques.gouv.fr
176.85 m²
11 874 €
9
4
2 sur 6
1900
1
Oui
Oui
Consommations énergétiques
Logement économe
336
Logement énergivore (kWhEP/m2/an)
Émissions de gaz à effet de serre
Faible émission de GES
66
Forte émission de GES(kgeqCO2/m2/an)
Contact m² Conseils Immobiliers
Contacter gratuitement à l'aide du formulaire ci-dessous.