VENEZ DÉCOUVRIR CET APPARTEMENT SOUPLEX T4 DE 96,64 M2 CARREZ AU TOTAL, AVEC REZ DE JARDIN ET UN BALCON A L'OUEST DONNANT SUR LES ARBRES DU PARC ATTENANT. AU NIVEAU INFERIEUR EN REZ-DE-JARDIN UNE TERRASSE COUVERTE ET SON JOLI JARDIN PRIVATIF DE 50 M2 ENVIRON .
DANS UN PETIT IMMEUBLE DE 4 LOTS DE 2018 avec de faibles charges de copropriété, au calme et sans vis à vis, cet appartement récent T4/T5, en souplex, offre confort moderne et une excellente qualité de vie, avec de jolies prestations.
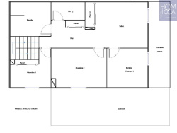
Avec ses airs de 'Maison de Ville', il s'organise de la façon suivante :
Au niveau zéro, de plain pied, une entrée aménagée avec un grand placard mural, ouverte sur une grande pièce de vie lumlneuse réunissant le salon, la salle à manger et la cuisine ouverte entièrement équipée, le tout avec un accès direct au grand balcon couvert exposé à l'Ouest et bénéficiant d'une agréable vue sur le Parc du Vallon. Au même niveau, se trouve une salle d'eau avec une douche, des toilettes suspendus et un espace buanderie.
On descend ensuite à l'étage inférieur, en rez-de-jardin, par des escaliers en bois. A ce niveau, sont réunies trois chambres dont une avec un grand placard mural, une deuxième salle d'eau avec douche, des toilettes indépendants, des placards muraux et un grand dégagement menant directement à la terrasse et au jardin. (4ème chambre possible). Profitez d'environ 50 m2 d´extérieur privatif, avec un côté terrasse abritée et un côté jardin végétalisé et aménagé pour profiter pleinement des beaux jours !
INFORMATIONS COMPLÉMENTAIRES : Local à vélo dans l'immeuble (A 15 min du centre-ville en vélo), panneaux photovoltaïques sur le toit pour une énergie complémentaire partagée et des économies d'électricité, potager partagé, chaudière individuelle gaz à condensation (eau chaude et chauffage individuels) - Taxe foncière 2025 : 1546EUR - Faibles charges de copropriété : 96EUR/mois environ
SON PRIX est de 309.000EUR FAI (un garage simple situé dans le batiment d'en face est possible pour 20.000EUR en supplément du prix). Pour visiter contactez directement Julie Silvy au 06.08.57.87.26 (agent commercial EI - RSAC 838468377). T06 X08.X57 X 87X 26
Situé en bordure de parc, il règne une atmosphère calme et paisible dans cet appartement, qui est un choix idéal pour vivre proche de la nature, tout en restant en ville. Au sein de l'éco quartier du plateau de la Duchère, dans un secteur très calme, il se situe à quelques minutes à pied des commerces du plateau, mais aussi à proximité immédiate d'Ecully, de Champagne au Mont d'Or, et de Lyon 9ème Gare de Vaise ; Ecoles et Collèges de secteur. Transports : Voie Lyonnaise 4 à proximité - A 20 minutes de Lyon Presqu'île par le Bus C14 - A 5 min en bus du Métro D Gare de Vaise ; Bus directs pour Saint Just (66), Part Dieu (C6) autre lignes de bus proches S11, 19, 89, 61, et 21 - Le Parc du Vallon a été réaménagé et offre des espaces de jeux, un jardin public, des clairières et un sous-bois. Les informations sur les risques auxquels ce bien est exposé sont disponibles sur le site Géorisques : www.georisques.gouv.fr
Duplex
96.64 m²
3 197 €
7 m²
37 m²
4
3
2
2
95 € / mois
2018
Ouest
Nord
1 (7 m²)
1
Oui
1
Oui (4 lots)
Consommations énergétiques
Logement économe
100
Logement énergivore (kWhEP/m2/an)
Émissions de gaz à effet de serre
Faible émission de GES
20
Forte émission de GES(kgeqCO2/m2/an)
Contact SILVY Julie
Contacter gratuitement à l'aide du formulaire ci-dessous.