A VENDRE - ROANNE BORDS DE LOIRE - APPARTEMENTS LIVRÉS EN PL
Roanne 42300
0
Honoraires à la charge du vendeur.
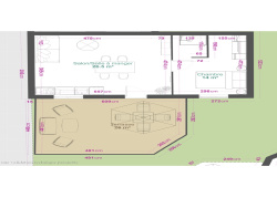
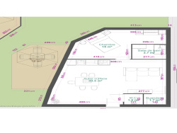
INFOS APPELEZ JULIEN 06 23 91 88 86 - A VENDRE - ROANNE BORDS DE LOIRE- AXEYLIA L'AGENCE À ST ROMAIN LA MOTTE, MEMBRE DU RÉSEAU NATIONAL EXPERTIMO, vous propose dans un secteur proche de toutes commodités 8 appartements plateaux à aménager : - Appartement 1 - RDC : plateau T2 de 42 m2avec terrasse privative 25m2 : 45.000EUR FAI. - Appartement 2 - RDC plateau 45 m2( 60m2)avec terrasse privative 50m2 : 49.900EUR ou 63.000EUR FAI (si sous escalier). - Appartement 3 - RDC plateau 50 m2 avecterrasse privative 15m2 : 53.000EUR FAI. - Appartement 4 - 1er étage : plateau 50 m2 : 53.000EUR FAI. - Appartement 5 - 1er étage : T2 de 44 m2 :48.000EUR FAI. - Appartement 6 - 2e étage : T2 de 35 m2 : 38.000EUR FAI. - Appartement 7 - 2e étage : plateau 50 m2 : 53.000EUR FAI. - Appartement 8 - 3e étage plateau 50 m2 : 53.000EUR FAI. Chaque appartement sera livré en plateau prêt à aménager, avec les prestations suivantes : Démolition complète effectuée, intérieurs débarrassés, structures saines conservées, façades piquées et reprises, nettoyage, préparation et application d'un enduit neuf pour une finition soignée et durable, pose d'un portail sécurisé à l'entrée de la copropriété garantissant l'accès restreint et la sécurité des occupants, délimitation des cours privatives, finition du sol extérieur en gravier, menuiseries extérieures neuves, pose de fenêtres neuves assurant confort thermique et acoustique, toitures entièrement reprises, zingueries neuves. N'hésitez pas à nous contacter pour une visite virtuelle 360oen temps réel - www.axeylia.fr - Honoraires charge vendeur. Barème sur notre site www.axeylia.fr - Axeylia Immobilier - Statut Négociateur EI : Agent mandataire Indépendant - RSAC : 897 977 195 - Roanne 'Les informations sur les risques auxquels ce bien est exposé sont disponibles sur le site Géorisques : www.georisques.gouv.fr'. Cette annonce vous est proposée par VINCENT Julien - - NoRSAC: , Enregistré au Greffe du tribunal de commerce de Roanne
50 m²
1 060 €
2
Contact VINCENT
Contacter gratuitement à l'aide du formulaire ci-dessous.