À vendre Terrain à bâtir Congis-sur-Thérouanne (Rue du Mid
Congis-sur-Thérouanne 77440
0
Honoraires à la charge du vendeur.
Terrain à bâtir situé Rue du Midi à Congis-sur-Thérouanne, dans un environnement calme.
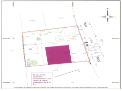
-Façade : 16 m linéaires -Profondeur : environ 20 m -Lot avant avec raccordements sur rue -Terrain libre de tout constructeur
La commune de Congis-sur-Thérouanne propose des écoles maternelle et élémentaire, des commerces de proximité (boulangerie, pharmacie, supérette...), et des services adaptés à la vie de famille.
En vous rendant Rue du Midi à Congis, vous trouverez un panneau « À vendre » directement implanté sur le terrain.
À noter : Compte tenu de la proximité de la rivière Thérouanne, qui a connu des débordements en 2021, notamment sur la zone destinée à accueillir l'habitation, toutes précautions devront être prises pour assurer la protection de la construction en cas d'inondation.
Cela implique par exemple : la réalisation d'un vide sanitaire avec un volume disponible pouvant servir de compensation, équipé d'ouvertures grillagées en soubassement afin de laisser passer et ressortir la crue. Ces aménagements devront obligatoirement apparaître sur les plans annexés à la demande de permis de construire. Sans ces précautions, un refus pourrait être opposé au titre de l'article R111.2 du Code de l'urbanisme
J'ai à votre disposition le plan local d'urbanisme (PLU) pour toute demande spécifique.
Disponible pour toute information complémentaire ou pour organiser une visite sur place.
347 m²
259 €
347 m²
Oui
Contact RIZZO
Contacter gratuitement à l'aide du formulaire ci-dessous.