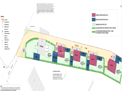
Nouveauté: Vous rêvez de construire votre maison dans un cadre agréable et proche de toutes les commodités ? Ce terrain est une belle opportunité à ne pas manquer ! Situé à Pertuis, dans un quartier calme et résidentiel, ce terrain de 410 m2 viabilisé offre une surface constructible de 200 m2, idéale pour donner vie à votre projet immobilier. Faisant partie d'un lotissement de 5 lots, il bénéficie d'un environnement serein tout en étant bien desservi. L'accès est facile et rapide aux routes principales, et la parcelle est idéalement située à proximité immédiate des écoles (maternelle, primaire, collège, lycée), ainsi que des commerces et services essentiels (supermarchés, restaurants, transports en commun). Prix de vente : 163 000EUR Ne laissez pas passer cette belle opportunité ! Contactez-nous dès maintenant pour plus d'informations ou pour organiser une visite. Contact : Léo CHARPIN 06.14.33.42.25
410 m²
398 €
410 m²
Oui
Contact CHARPIN LEO
Contacter gratuitement à l'aide du formulaire ci-dessous.