A VENDRE - VANNES CENTRE - Local commercial de 236 m² environ
Vannes 56000
0
Honoraires à la charge de l'acquéreur (Prix hors honoraires : 624226 euros).
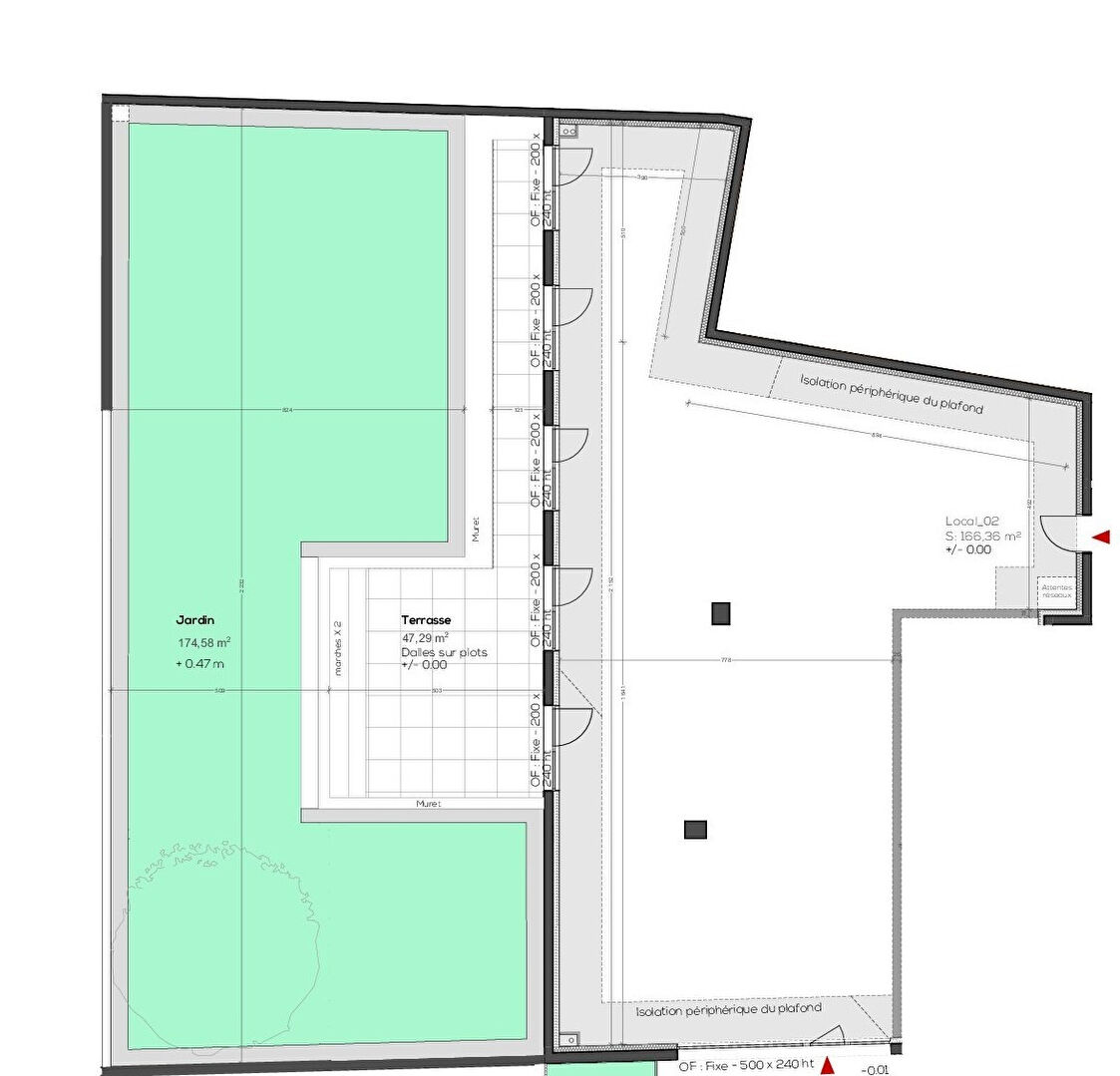
A VENDRE - VANNES CENTRE, AXE PASSANT - Local commercial d'environ 236 m², situé en rez-de-chaussée, offrant une large vitrine avec de grandes façades vitrées, deux accès indépendants ainsi que d'un accès direct au parvis et aux espaces extérieurs. // Prix de vente HT : 624 226 - Honoraires agence en sus charge acquéreur : 41 961 HT soit 50 354 TTC.
Honoraires inclus de 6.72% HT à la charge de l'acquéreur. Prix hors honoraires 624 226 HT. DPE en cours. Les informations sur les risques auxquels ce bien est exposé sont disponibles sur le site Géorisques : georisques.gouv.fr.
236 m²
2 823 €
6.72 %
Contact barbier immobilier
Contacter gratuitement à l'aide du formulaire ci-dessous.