À vendre ? Superbe appartement T4 de 78,11 m² avec balcon ? Massy Atlantis
Massy 91300
0
Un magnifique T4 situé au c?ur du quartier prisé d'Atlantis à Massy, à proximité immédiate des commerces, écoles et transports (RER B, RER C et TGV Massy-Palaiseau), cet appartement lumineux de 78,11 m² offre un cadre de vie moderne et confortable.
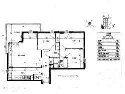
Appartement composé d'une entrée de 7.16 m² avec une porte blindée renforcée, un séjour de 25 m², une cuisine aménagée de 8.86 m², un dégagement de 3.12 m² une chambre de 11.07 m² (avec placard intégrés), une seconde chambre de 8.60 m² (avec placard ajouté), une troisième chambre de 8.88 m² (avec placard intégré), une salle de bain de 4.21 m² (avec baignoire et 1 meuble), 1 wc indépendant de 1.21 m², une terrasse de 10m². 2 places de parking sont situées sous-sol niveau -1 avec possibilité raccordement borne électrique. Fenêtres double-vitrage en PVC avec 2 stores roulants extérieurs côté salon. Avec volets battants (persiennes en bois pour les autres fermetures). Chauffage urbain collectif (par central thermique déchets et bois).
TRANSPORT
15 min à pied de la gare Massy-TGV
15 min à pied de la gare Massy-Palaiseau : RER B, C, Transilien V, Tram 12 et futur métro 18. Gare de bus principale de la zone
35 min en transport en commun de l'université Paris Saclay / 20 min en voiture
5 min en voiture pour rejoindre l'A10, 15 min en voiture pour rejoindre la N118
5 min à vélo pour rejoindre la coulée verte et remonter sur Paris (environ 1h30/1h45 de pistes cyclables dédiés pour rejoindre le centre de Paris)
L'aéroport d'Orly est à 30 min en voiture ou en transport, Charles de Gaules est à 1h30 via le RER B (aucune correspondance)
ADMINISTRATION
Administration :
5 min à pied de la mairie
10 min à pied de la poste
CADRE DE VIE (PARC)
10 min à pied du parc de la Tuilerie
20 min à pied du parc Ampère
15 min en voiture de la forêt Domaniale de Verrières
LOISIRS ET COMMERCES
15 min à pied de la place grand ouest (supérette, Cinéma Pathé, nombreux commerces de bouches, Lavomatic, pharmacie, etc.)
10 min à pied de l'hypermarché Carrefour, 15 min en voiture de la zone commerciale Villebon 2, 20 min en voiture de Vélizy 2
10 min à pied du marché de la ville le dimanche, et du centre ville
Un gymnase pour les activités sportives est dans la rue en face (1 min de marche à pied)
30 min à pied / 6 min en voiture de l'Opéra de Massy, et bientôt une liaison direct via le métro 18
SANTE
15/20 min en voiture de l'hôpital privé d'Antony (maternité)
30 min à pied / 6 min en voiture de l'hôpital privé Jacques Cartier
Cabinet dentaire en haut de la rue (3 min à pied), un autre place Grand ouest (15 min à pied)
De nombreux praticiens répartis un peu partout dans la ville (pédiatre, sage femme, ostéopathe, kiné, médecin généraliste, etc.
INFORMATIONS (financement immobilier);
- Connaissez-vous précisément votre capacité d'emprunt ?
Je peux si vous le désirez vous établir un plan de financement.
L'étude est Gratuite !
CONDITIONS FINANCIERES ACTUELS;
Voici celles proposées par notre partenaire courtier;
- Durée du prêt immobilier / 240 mois / Taux à partir de 3.20%
- Durée du prêt immobilier / 300 mois / Taux à partir de 3.30%
Cette annonce référence 309170 vous est présentée par votre agent commercial BSK Immobilier JACKY AMISSE (EI) immatriculé au RSAC de EVRY (91000) sous le numéro 38507509800033.
Prix du bien : 375 000,00 €
Les honoraires d'agence sont à la charge du vendeur.
A propos de la copropriété :
Pas de procédure en cours.
Nombre de lots : 170
Charges prévisionnelles annuelles : 263,00 €
A propos des performances énergétiques :
Date de réalisation du diagnostic énergétique : 21/10/2025
Score DPE : 131 kWhEP/m²/an
Score GES : 9 kgepCO2/m²/an
Montant estimé des dépenses annuelles d'énergie pour un usage standard : entre 820.00 € et 1160.00 € par an. Prix moyens des énergies indexés sur l'année 2025 (abonnements compris).
Les informations sur les risques auxquels ce bien est exposé sont disponibles sur le site Géorisques : www.georisques.gouv.fr
78 m²
4 808 €
4
2
1
1
3 sur 5
2006
Sud
Ouest
Oui
Oui
Consommations énergétiques
Logement économe
131
Logement énergivore (kWhEP/m2/an)
Émissions de gaz à effet de serre
Faible émission de GES
9
Forte émission de GES(kgeqCO2/m2/an)
Contact JACKY AMISSE
Contacter gratuitement à l'aide du formulaire ci-dessous.