A VENDRE 2 PIECES DANS RESIDENCE A 100 METRES DE LA PLAGE
Saint-Raphaël 83700
0
Honoraires à la charge du vendeur.
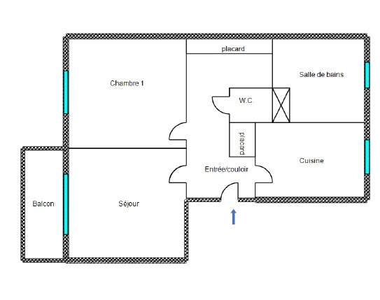
Votre agence Port Santa Lucia Immobilier, membre du Groupe Les Agences du Sud, vous propose à la vente en ce 2 pièces de 38m2 en parfait état à Saint-Raphaël sur le secteur de Boulouris à 2 minutes des plages et à 900 mètres des commerces. Un appartement 2 pièces composé d'un séjour avec cuisine ouverte toute équipée et aménagée, d'une grande chambre avec placard, d'une salle de bains, d'un wc indépendant et d'un dégagement avec placard. L'appartement est équipé de la climatisation réversible. Le séjour et la chambre donnent sur une terrasse de 12m2 en partie couverte et équipée de stores neufs. Possibilité garage en sus. Si vous êtes intéressés par ce bien, n'hésitez pas à contacter notre agence Port Santa Lucia Immobilier au 04.94.83.11.22 Les informations sur les risques auxquels ce bien est exposé sont disponibles sur le site Géorisques : www.georisques.gouv.fr
39 m²
5 308 €
17 m²
2
1
1
1
1 sur 3
130 € / mois
1980
Ouest
1
Oui
Oui
Oui (415 lots)
Consommations énergétiques
Logement économe
163
Logement énergivore (kWhEP/m2/an)
Émissions de gaz à effet de serre
Faible émission de GES
5
Forte émission de GES(kgeqCO2/m2/an)
Contact FIOT CHRISTOPHE
Contacter gratuitement à l'aide du formulaire ci-dessous.