A VENDRE 69005 LYON - MAISON INDIVIDUELLE DE 2026 DE 166 M2
Lyon 69005
0
Honoraires à la charge du vendeur.
69005 LYON - LA PLAINE - DANS UN QUARTIER PAVILLONNAIRE TRÈS CALME - REALISEZ VOTRE PROJET DE CONSTRUCTION COMME VOUS L'AVEZ TOUJOURS RÊVÉ
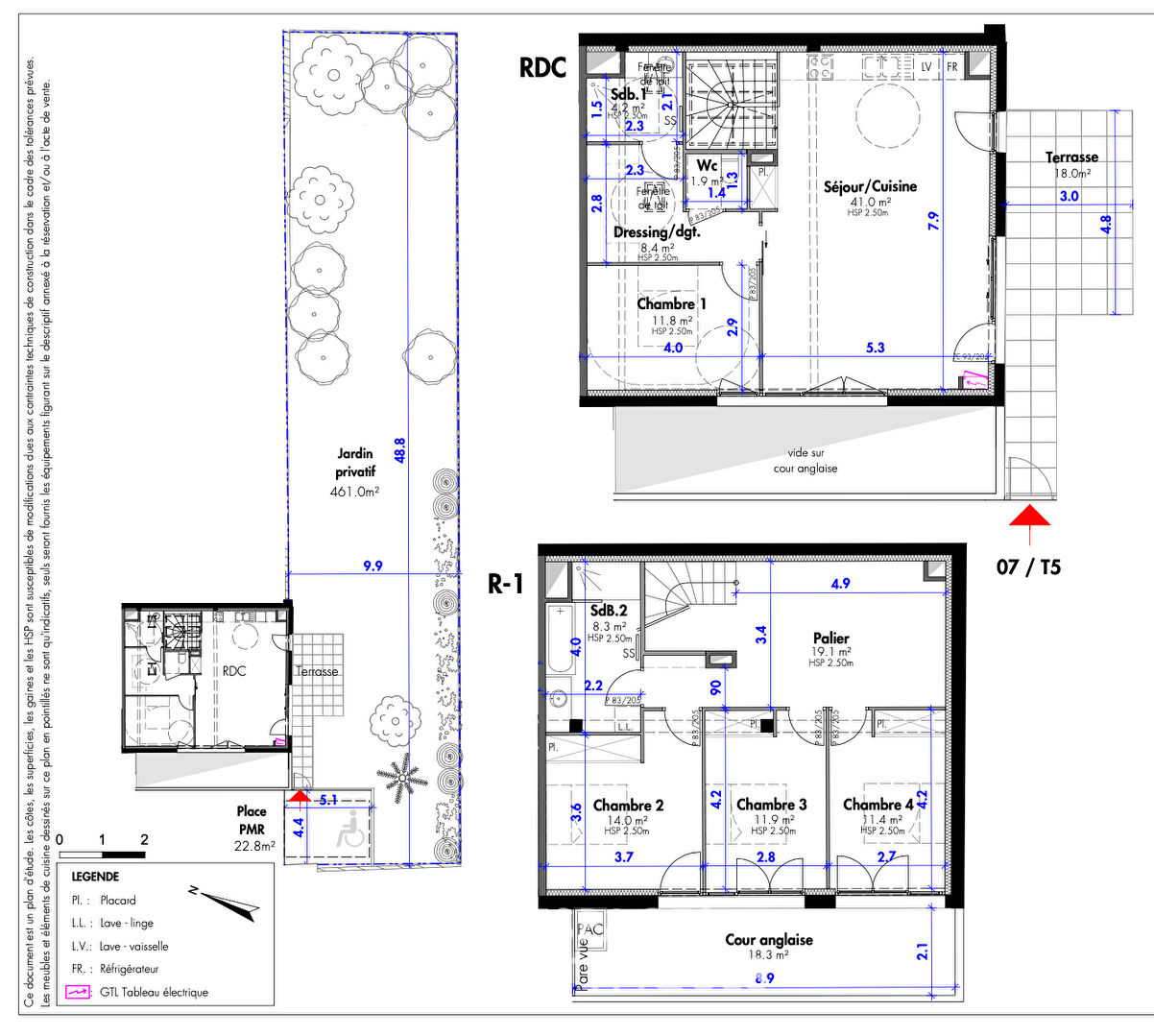
Les photos sont proposées par notre partenaire, constructeur de Maison Individuelle et permettent de se projeter sur un projet d'une maison individuelle composée de 4 chambres (dont une suite parentale avec dressing et salle de bains de plain pied), d'une entrée avec dressing, de deux salles de bains / douches, de deux WC, d'une grande pièce principale réunissant cuisine ouverte, un séjour et un salon avec accès à la terrasse exposée SUD/OUEST, un vaste cellier-buanderie avec accès garage attenant. La maison est orientée SUD/ OUEST avec 1 étage, pour une superficie totale de 166 m2 habitables, un garage attenant de 36 m2 accessible par l'intérieur de la maison. La parcelle est de 900 m2, un chemin d'accès est déjà délimité et permet d'être en retrait de la rue d'accès. Environnement pavillonnaire et au calme. Terrain plat clôs et arboré, offrant de nombreuses possibilités - Emplacement privilégié.
RAPPEL : Coût du projet total, à partir de 905.000EUR (hors VRD et cuisine) PRIX DU TERRAIN SEUL - 520.000EUR FAI - PRIX DE LA CONSTRUCTION DE LA MAISON : à partir de 385.000EUR selon prestations ** - COS 30% soit une possibilité de 270m2 d'emprise au sol - Parcelle en ZONE URi1b : zone pavillonnaire au PLU-H - Terrain piscinable avec l'obligation de laisser 30% de pleine terre sur la parcelle Terrain NON viabilisé - INFORMATION IMPORTANTE : terrain libre de constructeur.
POUR TOUT RENSEIGNEMENT COMPLEMENTAIRE contactez directement Julie SILVY joignable au 06 08 57 87 26 (agent commercial EI - RSAC 838469377) - T06 X08.X57 X 87X 26
** projections visuelles proposées par notre Partenaire 'Les Maisons Elytis Lyon-Ouest' constructeur régional de maisons individuelles. Projet modifiable. Rendez-vous organisé sur demande.
Accessibilité Ecoles, Commerces, transports Bus 65, 45, C20, C20E ... pour GORGE DE LOUP Métro D en 10/15 min, .... secteur LA PLAINE - accès facile POINT DU JOUR 2 KM (30 min à pied ; 8 min à vélo) ; Place ST-LUC (STE FOY LES LYON) - GARE Alaï tram-train 1km - Auchan Tassin 1.5 KM - proche CLINIQUE CHARCOT - Club de TENNIS Tcm5 - WEST POINT Ecole bilingue - Carrefour Francheville - Aldi Charcot
166 m²
5 452 €
900 m²
6
4
1
1
2
2026
Sud
Ouest
2
1
Contact SILVY Julie
Contacter gratuitement à l'aide du formulaire ci-dessous.