À vendre à Étaples : appartement neuf avec Agence Centrale
Étaples 62630
0
Honoraires à la charge du vendeur.
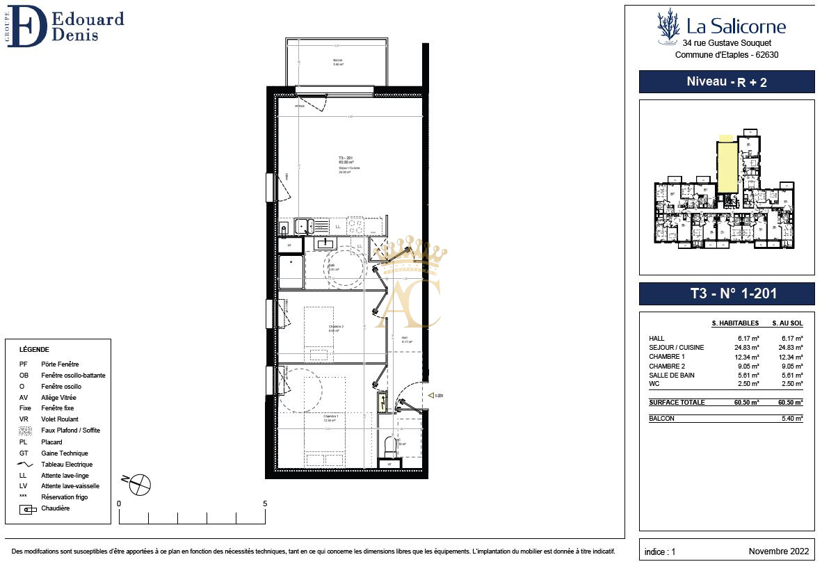
Placement immobilier de qualité avec cet appartement doté de 2 chambres sur le territoire d'Étaples. Dans un nouveau programme tout neuf prévu pour 2026. Vous pouvez contacter votre agence Agence Centrale pour en savoir plus. L'espace intérieur mesurant 63.44m2 est composé d'un espace cuisine, une salle de bain, un coin salon de 23.31m2 et un espace nuit comprenant 2 chambres. Cet appartement est au 2e étage ; les déplacements quotidiens sont facilités par l'ascenseur. Des fenêtres à double vitrage garantissent la tranquillité des occupants. Consomme peu d'énergie, étant conforme aux critères du label de bâtiment à basse consommation qui garantit une forte isolation thermique. À l'extérieur, la propriété vous offre un balcon occupant 5.40m2, ce qui amène la superficie exploitable à 68.84m2. Elle vous fait profiter d'un parking privatif. Dans le cadre de cet ensemble neuf, le prix de vente minimum est fixé à 257 000 EUR. Les informations sur les risques auxquels ce bien est exposé sont disponibles sur le site Géorisques : www.georisques.gouv.fr