Honoraires à la charge de l'acquéreur (Prix hors honoraires : 130800 euros).
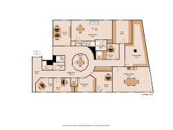
A vendre bureaux Montluçon, Centre Saint-Jacques (zone Carrefour) Situés au coeur de la zone commerciale de Carrefour Montluçon, dans un immeuble de 1989, ces bureaux de 212 m² se trouvent au 1er étage avec ascenseur. Le bien comprend plusieurs bureaux cloisonnés, un local d'archives, une salle de réunion, un espace de repos avec cuisine, ainsi qu'une salle de bains. Les volumes sont modulables selon les besoins. Possibilité d'acquérir une surface attenante de 319 m² sur le même palier, offrant ainsi une belle opportunité d'agrandissement. Le bien a été divisé en deux lots, et nous sommes actuellement en attente des montants actualisés des charges de copropriété et de la taxe foncière. N'hésitez pas à nous contacter pour une projection estimative Les informations sur les risques auxquels ce bien est exposé sont disponibles sur le site Géorisques. (0.38 % honoraires TTC à la charge de l'acquéreur.) Copropriété de 1 lots (Pas de procédure en cours). Charges annuelles : 1 euros.