A Vendre chez Christelle Mesnage Immobilier, 10 MINUTES À L'0
La Landec 22980
0
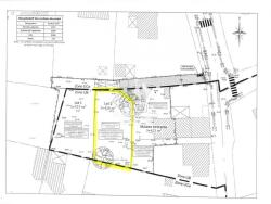
A Vendre chez Christelle Mesnage Immobilier, 10 MINUTES À L'OUEST DE DINAN, terrain constructible borné pour 428m², viabilisé en eau, telephone, internet et électricité. Viabilisation prévue en octobre 2024, disponible en novembre 2024.
Un assainissement individuel est à prévoir, charge acquéreur.
Réf: 389V217T
Les informations sur les risques auxquels ce bien est exposé sont disponibles sur le site www.georisques.gouv.fr
Retrouvez toutes nos annonces immobilières sur le site www.christellemesnage.com.
Une agence dynamique et professionnelle qui répond à toutes vos demandes de mise en vente de maisons, appartements, terrains sur la région de DINAN ou pour toutes locations.
L'agence Christelle Mesnage Immobilier vous accueille du Lundi après-midi au Samedi soir pour tous vos projets immobiliers sur la région de DINAN.
Contacter l'agence au 02.96.88.00.01
428 m²
135 €
428 m²
Contact CHRISTELLE MESNAGE IMMOBILIER
Contacter gratuitement à l'aide du formulaire ci-dessous.