À vendre Dinard -Saint-Énogat, charmant appartement avec double terrasse et garage
Dinard 35800
0
Honoraires à la charge de l'acquéreur (Prix hors honoraires : 450000 euros).
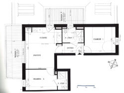
Idéalement situé dans le quartier très recherché de Saint-Énogat, au calme et à seulement quelques minutes des plages et des commerces, cet appartement lumineux offre un cadre de vie privilégié au sein d'une résidence de standing parfaitement entretenue. Cet appartement se distingue par ses espaces extérieurs et son exposition idéale. D'une surface confortable, il se compose d'une entrée, d'un salon séjour lumineux ouvrant sur une première terrasse de 12 m², exposée Sud-Ouest, parfaite pour profiter des soirées ensoleillées. Il dispose également d'une chambre agréable, d'une salle d'eau, ainsi que d'une seconde terrasse de 9 m², offrant un véritable prolongement de l'espace de vie. Le plan de cet appartement permet la création d'une seconde chambre avec salle d'eau tel qu'il était prévu sur le plan. Le point d'eau est déjà existant avec la présence d'un lavabo. Le garage fermé est un atout particulièrement recherché dans le secteur. Une opportunité rare pour profiter pleinement de la douceur de vivre dinardaise, en résidence principale, secondaire ou en investissement de qualité. Pour toute demande d'informations ou pour organiser une visite, contactez l'agence emeraude 48 rue Levavasseur, 35800 DINARD. Référence : 7682 - 02 99 46 11 01 - contact@agenceemeraude.fr. (4.20 % honoraires TTC à la charge de l'acquéreur.) Copropriété de 93 lots - dont 38 lots habitation. (Pas de procédure en cours). Charges annuelles : 1297.32 euros.