A VENDRE locaux d'activités neufs à partir de 117m² à CESSON
Cesson 77240
0
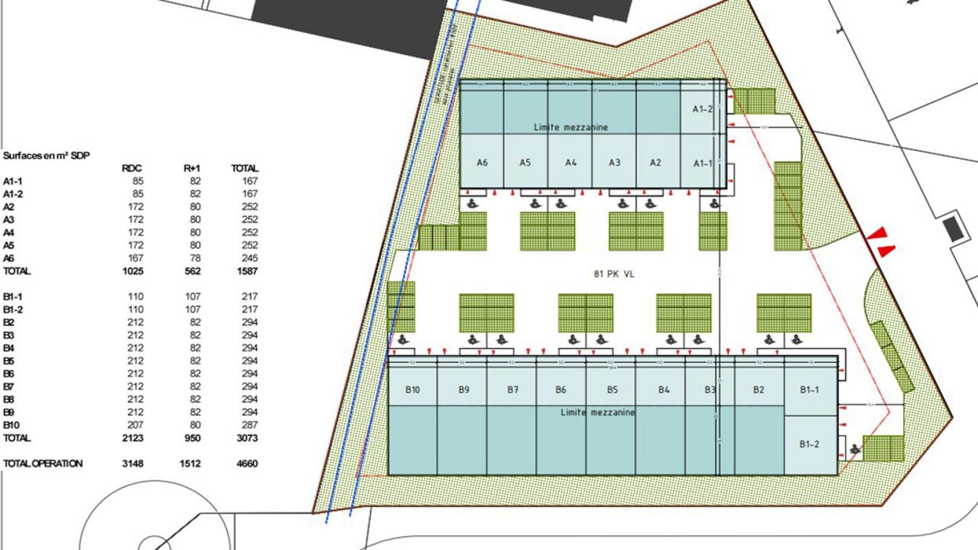
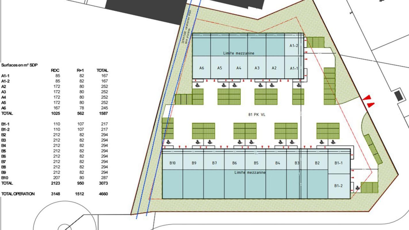
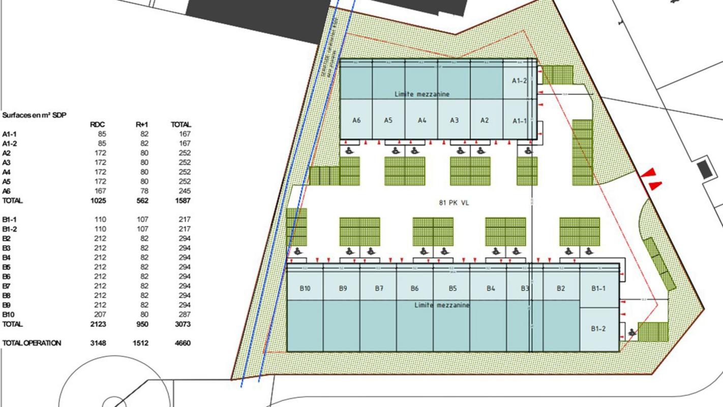
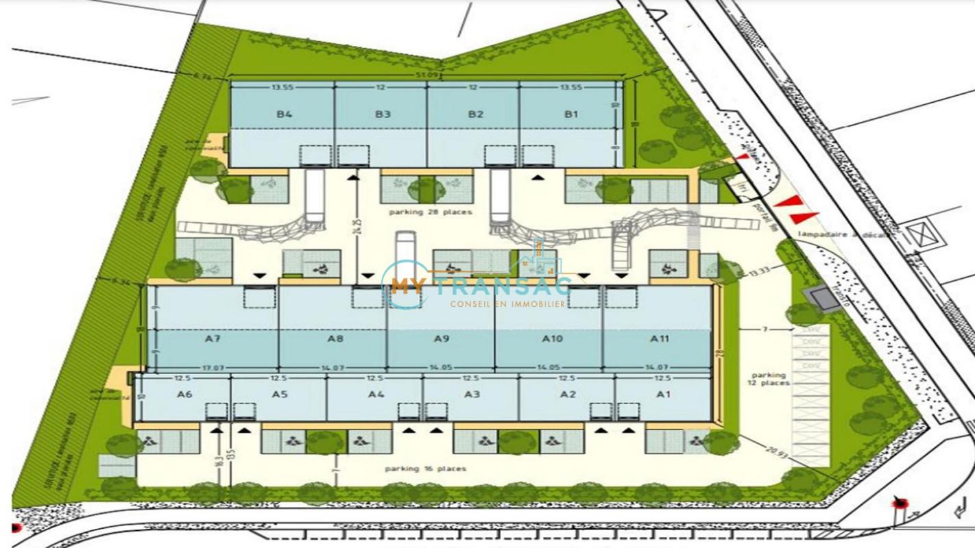
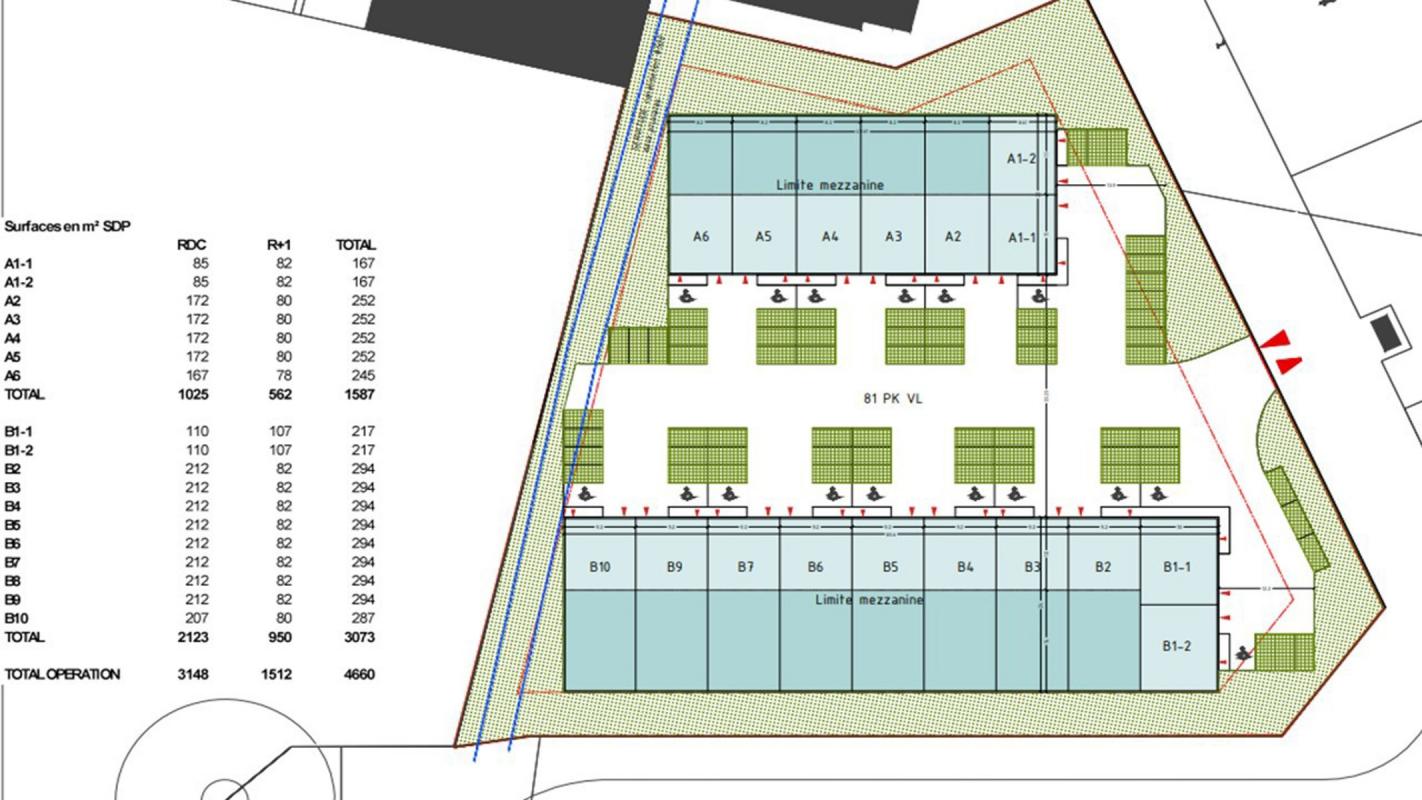
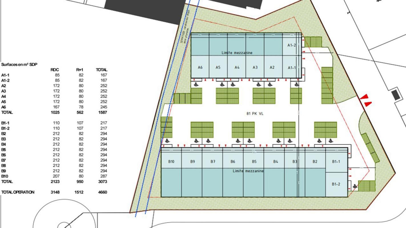
My Transac vous propose à la VENTE des locaux d'activités neufs comprenant 15 cellules sur 2 bâtiments surface à partir de 117m², 333m² et 442m²
Livraison prévue Février 2026
Possibité de réunir plusieurs surfaces
Prestations Activité :
- Hauteur libre : 7m50
- Porte sectionnelle : 2,7m x 3,5m
- Électricité : tarif bleu ou jaune selon la cellule
- Dallage en béton surfacé quartz (surcharge 3T/m²)
- Voirie lourde pour les aires de man?uvre et decirculation
- Site clos et sécurisé
- Accès par un portail coulissant motorisé réglé sur horloge
- Système d'interphone et commande du portail actionnable par téléphone depuis chaque lot
- Label BiodiverCity
- Certification BREEAM
Prestations Mezzanine :
- Desservie par escalier en béton, main courante métallique et marches carrelées
- Plancher béton dimensionné pour 250 kg/m² de surcharge utile et 100 kg/m² de charge constante
- Chauffage électrique par convecteurs radiants électriques
- Revêtement du sol en moquette en dalles 50x50 cm
- Faux-plafonds en dalles minérales 600x600 mm montées sur ossature métallique
- Eclairage par luminaires LED de 600x600 mm intégré au faux-plafond, 300 lux moyen
Accès :
Autoroute A5 sortie n°12 Cesson ? Vert Saint Denis (6 min)
Francilienne N104 via A5b (10 min)
RER D « Gare de CESSON » (15min)
Bus 31 et 36 arrêts Montdauphin et Fontaine Ronde (5min)
Conditions financières :
Prix de vente : à partir de 1525 Euros HT/m2 jusqu'à 1800 Euros HT/m²en fonction des lots
Honoraire de commercialisation : 5% HT du prix net vendeur
118 m²
1 800 €
Contact MY TRANSAC
Contacter gratuitement à l'aide du formulaire ci-dessous.