Bienvenue à Adon, ce charmant petit village typique de la région. Aux portes de l'histoire du Coligny, offrant calme et sérénité, se trouve cette maison à rénover sur un terrain de 1 800 m² offrant une opportunité rare à ne pas manquer.
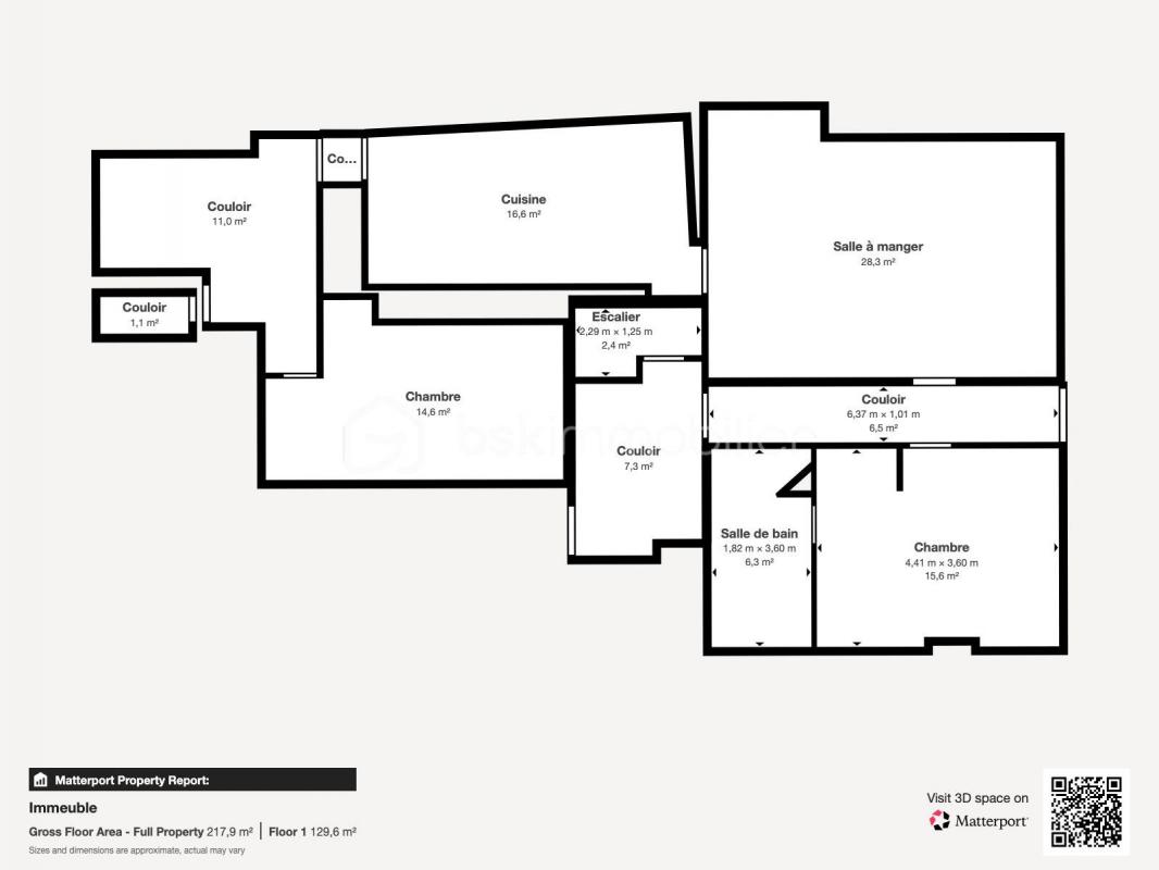
Un véritable diamant brut, développe environ 215 m² habitables sur deux niveaux. Le rez de chaussée se compose d'une entrée, d'un vaste salon/séjour de plus de 140 m² avec cuisine ouverte et plafond cathédrale. À l'étage, vous découvrirez une mezzanine, trois belles chambres, un WC et une salle d'eau.
Alliant confort, modernité et sérénité, cette maison bénéficie de fenêtres en double vitrage et de volets roulants électriques. Attenant à celle-ci, d'un double garage sécurisé par des portes automatiques.
Une partie des travaux de construction a déjà été réalisée, avec l'aménagement des pièces à l'étage laissé en état brut, offrant la possibilité de personnaliser cet espace selon vos goûts et vos besoins.
Ce bien rare offre de nombreuses possibilités. Il séduira aussi bien les particuliers en quête d'un cadre de vie paisible que les professionnels souhaitant développer une activité artisanale, libérale ou de microentreprise dans un environnement authentique et inspirant.
N'attendez plus pour concrétiser votre projet immobilier ou professionnel.
Contactez-moi dès maintenant pour organiser une visite.
Cette annonce référence 305814 vous est présentée par votre agent commercial BSK Immobilier BRYAM RICHARD (EI) immatriculé au RSAC de ORLEANS (45000) sous le numéro 93091905500010.
Prix du bien : 129 000,00 €
Les honoraires d'agence sont à la charge du vendeur.
Non soumis au DPE.
Les informations sur les risques auxquels ce bien est exposé sont disponibles sur le site Géorisques : www.georisques.gouv.fr
215 m²
600 €
5
3
1
1
1
1850
Oui
Oui
Contact BRYAM RICHARD
Contacter gratuitement à l'aide du formulaire ci-dessous.