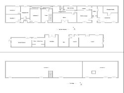
L'agence FOCH à TARBES vous propose à la vente cet ensemble immobilier comprenant: une maison de type 'bigourdane' de 116 m2 au sol entièrement à rénover avec combles non aménagés et présentant un potentiel d'exploitation très intéressant (20mx6.55m, 4m de hauteur maximale). un ancien laboratoire de charcuterie avec chambre froide, à rénover également ou à transformer diverses remises un T2 habitable en l'état, classé D, avec menuiseries en PVC double vitrage et climatisation réversible. Ce T2 vous permettra d'avoir un logement sur place le temps de rénover la maison principale ou de le louer pour amortir votre investissement. Des travaux de rénovation conséquents sont à prévoir pour redonner à cette vieille bâtisse tout son charme et son cachet. De quoi pouvoir profiter d'un financement avantageux avec un prêt à taux zéro!
Pour tout renseignement complémentaire ou pour une visite, contactez Audrey BUJOLI au 09.53.21.86.79
Honoraires à la charge du vendeur. Logement à consommation énergétique excessive : Classe énergie F, Classe climat F Montant estimé des dépenses annuelles d'énergie pour un usage standard : entre 3699.00 et 5006.00 sur les années 2021, 2022 et 2023 (abonnements compris). Les informations sur les risques auxquels ce bien est exposé sont disponibles sur le site Géorisques : georisques.gouv.fr.
Votre conseiller Agence Foch : Audrey BUJOLI Agent commercial (Entreprise individuelle). Agence Foch Tarbes 111 bis rue Maréchal Foch contact@agencefochimmobilier.fr
Ferme
116 m²
1 476 €
973 m²
4
3
1
1 (séparé)
Sud
Consommations énergétiques
Logement économe
369
Logement énergivore (kWhEP/m2/an)
Émissions de gaz à effet de serre
Faible émission de GES
82
Forte émission de GES(kgeqCO2/m2/an)
Contact Agence Foch
Contacter gratuitement à l'aide du formulaire ci-dessous.