A Vendre Nîmes, proche Jean Jaurès, locaux professionnels de
Nîmes 30900
0
Honoraires à la charge du vendeur.
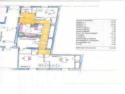
Local professionnel et Maison de ville en local actuellement avec cour. Idéalement situé entre Pompidou et Jean Jaures sur la ville de Nîmes. Ensemble immobilier 100 m2 au total, en parfait état. Ce bien se compose de deux bâtiments indépendants, totalisant 100 m2 de surface : Un local professionnel de 60 m2 en R+1, en façade sur rue, comprenant : Une grande pièce lumineuse de 25 m2 avec placard intégré, Un espace WC avec lave-mains, À l'étage, un vaste dégagement avec rangement et deux pièces pouvant être aménagées en bureaux ou chambres selon vos besoins. Une maison de ville en fond de cour d'environ 40 m2, avec : Une belle pièce principale avec coin cuisine, Un dégagement avec grand placard, toilettes indépendantes avec lave-mains, Une mezzanine de 7 m2 accessible par entrée indépendante, idéale pour un bureau ou un espace nuit. Ce bien dispose également d'équipements de confort tels que la climatisation et des brise-soleil orientables motorisés. Sa localisation privilégiée, son charme et sa polyvalence en font un lieu idéal pour une activité professionnelle, un investissement locatif ou un projet d'habitation avec bureau attenant. À découvrir sans tarder ! Ce bien vous est présenté par l'Agence Best Home, 6 Place Questel à Nîmes Tel 04 66 29 03 30 email contact@best-home.fr Contact direct : Annabelle LAFON Tel 07 61 78 11 87 EMAIL annabellelafon.besthome@gmail.com Portage salarial en Immobilier Carte Nîmes noADC 3002 2018000026953. Les informations sur les risques auxquels ce bien est exposé sont disponibles sur le site Géorisques : www.georisques.gouv.fr Le prix affiché est en Hors Taxe (Tva à 20% )