Secteur Parapluie Studio avec Jardin Privé Secteur Parapluie, à 7 minutes à pied des commerces de la rue Dalayrac Découvrez ce studio exceptionnel de 24 m², niché dans un immeuble construit en 1900. Ce petit nid douillet, en parfait état, vous offre une vue imprenable sur un jardin privatif de 26 m²,
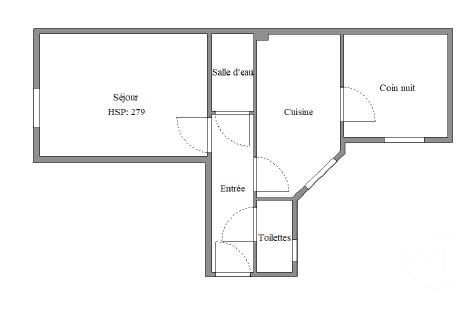
Imaginez-vous dans ce séjour de 20 m²,cuisine américaine équipée, salle d'eau, complète ce logement où tout a été pensé pour votre confort.
Profitez d'une terrasse pour vos moments de détente et de repas en plein air
Situé à proximité immédiate des commodités, et un parc à seulement 5 minutes à pied. Les transports en commun (3 bus à proximité immédiate de 4 gares(118,124 et 127 )(RER A VINCENNES, métro Croix de Chavaux, RER A FONTENAY SOUS BOIS)et un métro à 5 minutes en vélo
Ce studio est libre et prêt à vous accueillir pour créer de nouveaux souvenirs.
Honoraires à la charge du vendeur. Dans une copropriété de 6 lots. Quote-part moyenne du budget prévisionnel 884 /an. Aucune procédure n'est en cours. Classe énergie E, Classe climat B Montant moyen estimé des dépenses annuelles d'énergie pour un usage standard, établi à partir des prix de l'énergie de l'année 2021 : entre 710.00 et 1010.00 . Les informations sur les risques auxquels ce bien est exposé sont disponibles sur le site Géorisques : georisques.gouv.fr.