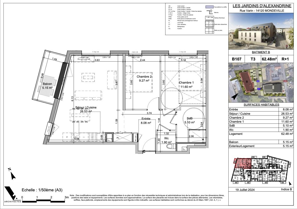
A 10 minutes de la gare de Caen, opportunité d'acquistion d'un appartement très lumineux de 3 pièces, 2 chambres un beau séjour donnant sur une confortable loggia, une salle de bain avec radiateur sèche serviette et WC séparé. Ascenseur, parking privatif dans le résidence. Bus de ville et piste cyclable à proximité immediate. Commune tous commerces et services de Caen La Mer. Centres commerciaux, accès periphérique et autoroute de Paris en quelques minutes. Confort et économies grâce à la chaudière individuellle au gaz, fenètres double vitrage et aux dernières normes de construction. Eligible au PTZ et Action logement. Frais de notaire 6300 EUR environ.
63 m²
3 333 €
7 m²
26 m²
3
2
1
1
1
2025
1 (7 m²)
Oui
1
Consommations énergétiques
Logement économe
61
Logement énergivore (kWhEP/m2/an)
Émissions de gaz à effet de serre
Faible émission de GES
6
Forte émission de GES(kgeqCO2/m2/an)
Contact L'AGENCE DU NEUF
Contacter gratuitement à l'aide du formulaire ci-dessous.