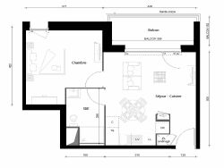
ACIGNE - Appartement 2 pièces 40.17m² Ouest - 2ème étage - ascenseur - balcon 6.11m² - stationnement. Proche de Rennes et de Cesson-Sévigné, idéalement situé à Acigné, au sein d'une résidence conforme aux dernières normes RT 2020, cet appartement de 2 pièces développe une surface de 40.17 m². Situé au 2ème étage avec ascenseur, il se compose d'une entrée avec placard, d'un séjour salon exposé au Ouest avec cuisine ouverte donnant accès à un balcon de 6.11 m², d'une chambre, d'une salle d'eau avec WC. Une place de stationnement sécurisée en sous-sol complète ce bien. Les commodités sont accessibles à pied : boulangerie, des commerces, écoles maternelles et élémentaires, accueil périscolaire ainsi qu'un arrêt de bus du réseau STAR... Un environnement idéal pour vivre, grandir et s'installer durablement. Prix promoteur - frais de notaire réduits. Les informations sur les risques auxquels ce bien est exposé sont disponibles sur le site Géorisques : www.georisques.gouv.fr Copropriété de 53 lots - dont 53 lots habitation. Charges annuelles : 576 euros.