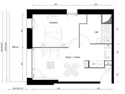
ACIGNE - Appartement 2 pièces 40.07m² Sud - 1er étage - ascenseur - balcon 9.74m² - stationnement. Proche de Rennes et de Cesson-Sévigné, idéalement situé à Acigné, au sein d'une résidence conforme aux dernières normes RT 2020, cet appartement de 2 pièces, situé au 1er étage, offre une disposition fonctionnelle et agréable. L'entrée s'ouvre sur un séjour salon avec cuisine ouverte, formant un espace convivial et lumineux. Cet espace donne accès à un balcon au Sud, parfait pour profiter d'un extérieur au calme. La chambre, bien proportionnée, permet l'aménagement d'un espace nuit confortable avec rangements. La salle d'eau dispose d'un emplacement pour lave-linge, avec wc. Une place de stationnement sécurisée en sous-sol complète ce bien. Les commodités sont accessibles à pied : boulangerie, des commerces, écoles maternelles et élémentaires, accueil périscolaire ainsi qu'un arrêt de bus du réseau STAR... Un environnement idéal pour vivre, grandir et s'installer durablement. Prix promoteur - frais de notaire réduits. Les informations sur les risques auxquels ce bien est exposé sont disponibles sur le site Géorisques : www.georisques.gouv.fr Copropriété de 53 lots - dont 53 lots habitation. Charges annuelles : 576 euros.