Agréable Maison Juvignac 3 pièce(s) Garage + Jardin+parking
Montpellier 34000
0
Votre agence GUY HOQUET Juvignac vous propose une charmante maison située dans un quartier calme à Juvignac.
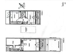
Au rez-de-chaussée, vous serez séduit par une entrée fonctionnelle avec rangements, un WC indépendant, ainsi qu'un bel espace de vie lumineux et climatisé comprenant cuisine ouverte et séjour, le tout prolongé par une terrasse conviviale donnant sur un jardin arboré et ombragé, idéal pour profiter des beaux jours en toute tranquillité.
A l'étage, l'optimisation de l'espace a été pensée dans les moindres détails : un coin bureau, une chambre climatisée avec placard aménagé, une salle de bains moderne avec double vasque, un second WC, ainsi qu'une seconde chambre climatisée avec terrasse privative surplombant le jardin.
Cette maison offre un cadre de vie agréable, lumineux et calme, avec en complément un garage fermé attenant et une place de stationnement privative.
A visiter sans tarder !
Contactez dès maintenant Sylvie LOPES au 06 11 80 10 13
Entrepreneur individuel ? Agent Commercial (EI)
RSAC : 529 337 560 ? CCI Montpellier
Réf : 3461SL
Copropriété de 49 lots (Pas de procédure en cours).
Charges annuelles : 432 euros.
Sylvie LOPES (EI) Agent Commercial - Numéro RSAC : 529337560 - MONTPELLIER.
Les informations sur les risques auxquels ce bien est exposé sont disponibles sur le site Géorisques : www. georisques. gouv. fr
70 m²
3 741 €
70 m²
3
2
1
2
2008
Oui
Consommations énergétiques
Logement économe
106
Logement énergivore (kWhEP/m2/an)
Émissions de gaz à effet de serre
Faible émission de GES
3
Forte émission de GES(kgeqCO2/m2/an)
Contact GUY HOQUET L'IMMOBILIER
Contacter gratuitement à l'aide du formulaire ci-dessous.