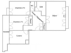
En EXCLUSIVITÉ à la vente dans votre agence IMMO DE CORSE nous vous présentons sur la commune d'Ajaccio ce bel appartement de type 3 de 66.70 m2 Loi Carrez refait à neuf. Idéalement situé, cet appartement traversant saura vous séduire par ses volumes et son environnement calme. Il se trouve en rez-de-chaussée surélévé et comprenant : un hall d'entrée, un séjour et une salle à manger, une cuisine séparée donnant sur une loggia, deux chambres au calme, une salle de bains et un WC séparé. Une cave de 7m2 complète ce lot. Vous bénéficierez de toutes les commodités ( supermarché, pharmacie, épicerie, boulangerie, presse, école, collège, transports en commun).... Bien soumis au statut de la copropriété. Immeuble récemment ravaler, cette copropriété est trés bien entretenu. Un parking collectif privé . les + : Doubles vitrages, volets roulants électriques, parquet neuf dans les chambres et carrelage salle de bains, wc, entrée et séjour neuf. Stationnement facile. Montant des charges courantes/mensuel : 75.66 euros. Les informations sur les risques auxquels ce bien est exposé sont disponibles sur le site Géorisques : www.georisques.gouv.fr
66.7 m²
2 984 €
20 m²
3
2
1
1
75.66 € / mois
Sud
Est
Oui
Oui
1
1
Oui
Consommations énergétiques
Logement économe
216
Logement énergivore (kWhEP/m2/an)
Émissions de gaz à effet de serre
Faible émission de GES
49
Forte émission de GES(kgeqCO2/m2/an)
Contact LEPATRE EMMANUELLE
Contacter gratuitement à l'aide du formulaire ci-dessous.