En EXCLUSIVITÉ à la vente dans votre agence IMMO DE CORSE nous vous présentons sur la commune d'Ajaccio ce bel appartement de type 3 de 66.70 m² Loi Carrez refait à neuf.
Idéalement situé, cet appartement traversant saura vous séduire par ses volumes et son environnement calme.
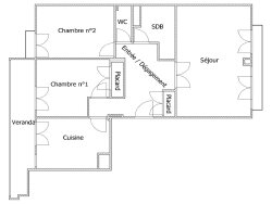
Il se trouve en rez-de-chaussée surélévé et comprenant :
un hall d'entrée, un séjour et une salle à manger, une cuisine séparée donnant sur une loggia, deux chambres au calme, une salle de bains et un WC séparé.
Une cave de 7m² complète ce lot.
Vous bénéficierez de toutes les commodités ( supermarché, pharmacie, épicerie, boulangerie, presse, école, collège, transports en commun)....
Bien soumis au statut de la copropriété. Immeuble récemment ravaler, cette copropriété est trés bien entretenu. Un parking collectif privé .
les + : Doubles vitrages, volets roulants électriques, parquet neuf dans les chambres et carrelage salle de bains, wc, entrée et séjour neuf. Stationnement facile.
Montant des charges courantes/mensuel : 75.66 euros.
Les informations sur les risques auxquels ce bien est exposé sont disponibles sur le site Géorisques : www.georisques.gouv.fr
Les informations sur les risques auxquels ce bien est exposé sont disponibles sur le site Géorisques : www.georisques.gouv.fr
66 m²
2 864 €
20 m²
3
2
1
1
1990
Sud
Est
Oui
Oui
Consommations énergétiques
Logement économe
216
Logement énergivore (kWhEP/m2/an)
Émissions de gaz à effet de serre
Faible émission de GES
49
Forte émission de GES(kgeqCO2/m2/an)
Contact SECIC IMMOBILIER
Contacter gratuitement à l'aide du formulaire ci-dessous.