Libre au plus tard le 23/07/2026 Forom® Immobilier
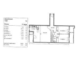
Forom Immobilier vous propose cet appartement T3 d'une surface d'environ 69,97 m² au 3ème étage situé dans une résidence sécurisée sur la commune de Alfortville.
Le bien dispose d'un séjour, d'une cuisine ouverte, deux chambres, d'une salle de bain, d'un WC, d'un balcon, et d'une place de parking en sous-sol.
Ravalement de façade et rénovation de la couverture ZINC en cours (à la charge du propriétaire actuel) !
Charges : 127,85 / mois Taxe foncière : 1 871 / an Date de fin de bail : 23/07/2026 DPE : C Nombre de lots : 113 Honoraires charge vendeur
La résidence Située dans un quartier calme et résidentiel, la résidence bénéficie d'une excellente desserte avec la ligne RER D à proximité, facilitant les déplacements vers Paris. Commerces, écoles et services sont accessibles à pied, offrant un cadre de vie pratique et agréable.
Honoraires à la charge du vendeur. Dans une copropriété de 113 lots. Aucune procédure n'est en cours. Classe énergie C, Classe climat A Montant moyen estimé des dépenses annuelles d'énergie pour un usage standard, établi à partir des prix de l'énergie de l'année 2023 : entre 670.00 et 950.00 . Les informations sur les risques auxquels ce bien est exposé sont disponibles sur le site Géorisques : georisques.gouv.fr.
69.97 m²
4 545 €
12 m²
3
2
1
1
3 sur 5
2004
1 (12 m²)
1
Oui (113 lots)
Consommations énergétiques
Logement économe
147
Logement énergivore (kWhEP/m2/an)
Émissions de gaz à effet de serre
Faible émission de GES
4
Forte émission de GES(kgeqCO2/m2/an)
Contact Forom® Immobilier
Contacter gratuitement à l'aide du formulaire ci-dessous.